Подати оголошення
На жаль всі квартири з данним плануванням продані
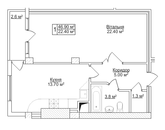
1-кімнатна 46.9 м² в ЖК на вул. Героїв УПА, 29 від забудовника, Львів

Однокімнатне планування квартири 46.9 м² в ЖК на вул. Героїв УПА, 29, Львів

Загальна площа46.9 м²
Поверхи3 / 7-8
Житлова площа22.4 м²
Площа кухні13.7 м²
від забудовника
+380 (67) 343 25 23Дзвонити

Інші 1-кімнатні планування, ЖК на вул. Героїв УПА, 29

1-кімнатна 39.5 м² в ЖК на вул. Героїв УПА, 29 від забудовника, Львів
Ціна:
I квартал 2016
продано39.5 м²
Поверх 4 / 7-8
Помітили невідповідність? Повідомте нам
ЛьвівцентробудЛьвівцентробуд
Забудовник
Львівцентробуд
+380 (67) 343 25 23Дзвонити

Розташування

Адресавул. Героїв УПА, 29
Найближчі орієнтириРинок "Привокзальний", Радіоринок, Ботанічний сад Львівського лісотехнічного іституту, Парк Піщані Озера, Сквер Святого Юра
Loading map...

Задайте питання забудовнику

Відділ продажів ЖК на вул. Івана Карпинця / Генерала Засядько
Купуй квартиру на Domik.ua
Широкий вибір квартир від власників, забудовників та ріелторів
Детальніше
РІЕЛ

РІЕЛ

93 будинки будують в 14 ЖК
46 готових будинків в 25 ЖК з 2013 року
Київміськбуд

Київміськбуд

61 будинок будують в 21 ЖК
167 готових будинків в 76 ЖК з 2010 року
Blago

Blago

60 будинків будують в 15 ЖК
24 готових будинки в 5 ЖК з 2013 року
Трест Жилбуд-1

Трест Жилбуд-1

59 будинків будують в 11 ЖК
181 готовий будинок в 36 ЖК з 2012 року
Comfort Life

Comfort Life

54 будинки будують в 9 ЖК
50 готових будинків в 10 ЖК з 2012 року