К сожалению все дома и участки c данной планировкой проданы
Коттедж 240 м² в КП Zahrava Village, г. Буча
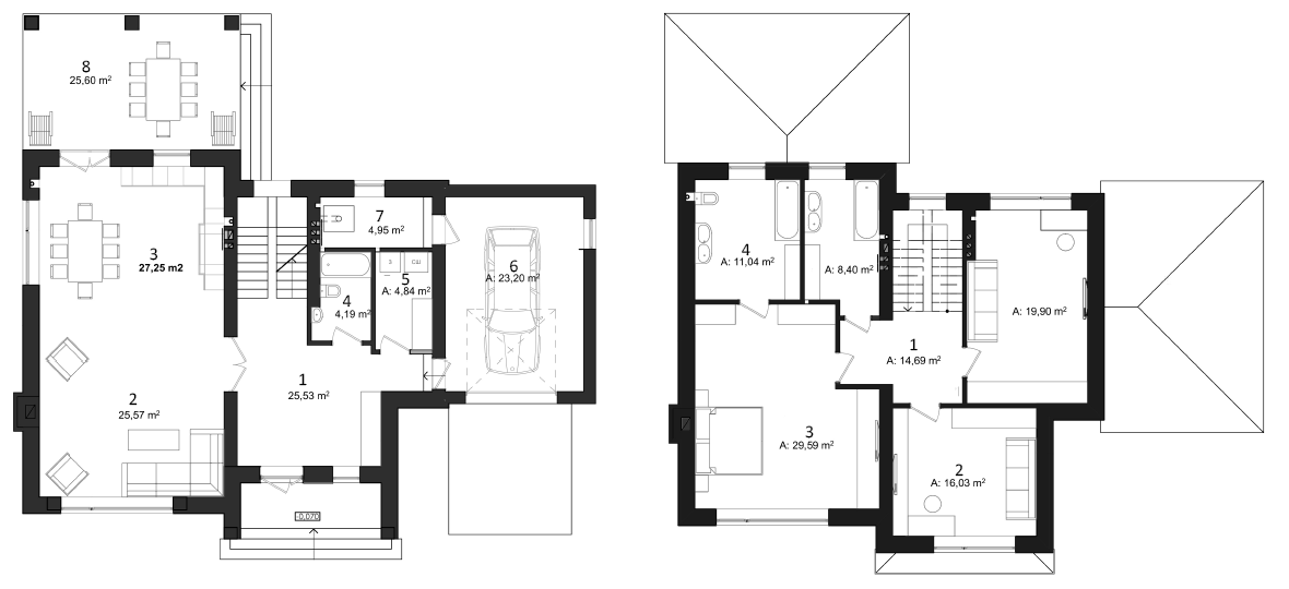
Общая площадь240 м²
Площадь участка12 соток
Спален3
Санузлов3
7.06 млн Грн
/ 29 431 грн/м²
Цены на коттеджи от застройщика актуальны на 09.07.2021
Заметили неточность? Сообщите нам
Расположение
Адресул. Грибоедова, 4
Loading map...
Задайте вопрос застройщику


Купуй квартиру на Domik.ua
Широкий вибір квартир від власників, забудовників та ріелторів
Подробнее