Продажа 4-комнатной квартиры 105 м², Запорожское шоссе
Создано 24 декабря, обновлено 24 декабря
Код объявления 22425227
- Стоит ли сейчас покупать недвижимость?26.124 899
- Застройщик предлагает только дарственную вместо купли-продажи. Насколько это популярно?23.1210
- Дно рынка недвижимости и влияющие факторы16.1115 264
- Різонність ціни за оренду квартири (12 тисяч гривень)13.111
- Додаткові розрахунки між орендодавцями та орендарями06.1127
Продажа квартиры
| Тип | 4-комнатная | |
| Общая площадь | 105 м² | |
| Площадь кухни | 11 м² | |
| Жилая площадь | 85 м² | |
| Этаж | 12 | |
| Этажей в доме | 12 | |
| Совмещенных санузлов | 1 | |
| Лоджий | 1 | |
| Окна выходят | На улицу | |
| Парковка | Наземная | |
| Отделка | Современный ремонт | |
| Пассажирских лифтов | 1 |
Описание
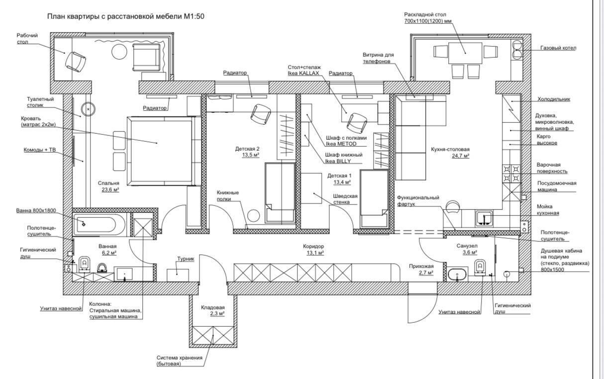
Продам видову 105м2 4х кімнатну квартиру ЖК Щасливий 138000$ + гараж Панорамні вікна/два санузла/ 3 окреми кімнати/кладова +Індивідуальне газове опалення +12 поверх /є тех поверх + кухня - вітальня /обідня зона/лоджія +Майстер-спальня зі своїм санвузлом/ванна/робоча зона/ лоджія + дві багатофункціональні дитячі кімнати +гостьовий санвузол/душова + велика кількість місць для зберегання речей + техніка від Bosch + безліч сценаріїв освітлення + ціна гаражу з ремонтом 24000$ +зручне розташування на зовнішньому периметрі секції 13
Есть информация, о который вы хотите сообщить?
Расположение
АдресДнепр, Запорожское шоссе
Ближайшие ориентиры:Урочище Тоннельная Балка, Парк им. Володи Дубинина
Loading map...
Написать владельцу

Купуй квартиру на Domik.ua
Широкий вибір квартир від власників, забудовників та ріелторів
Подробнее