Подать объявление

Продажа магазина 235.3 м², Недєліна

$⁠120 000 / $⁠510 за м²
Смотреть все объекты
На домике с 2011 года
+380 (67) 638 50 54Позвонить
Создано 29 октября 2025, обновлено 24 декабря 2025
Код объявления 22411158
Продажа магазина 235.3 м², Недєліна
Продажа магазина 235.3 м², Недєліна
Продажа магазина 235.3 м², Недєліна
Продажа магазина 235.3 м², Недєліна

Продажа торгового помещения

ТипМагазин
Линия домовПервая
ВходОтдельный с улицы
Этаж1
Общая площадь235.3 м²
Наличие оборудованияБез оборудования
Тип помещенияStreet retail
Этажей в доме9
Тип домаЖилой многоквартирный дом

Описание

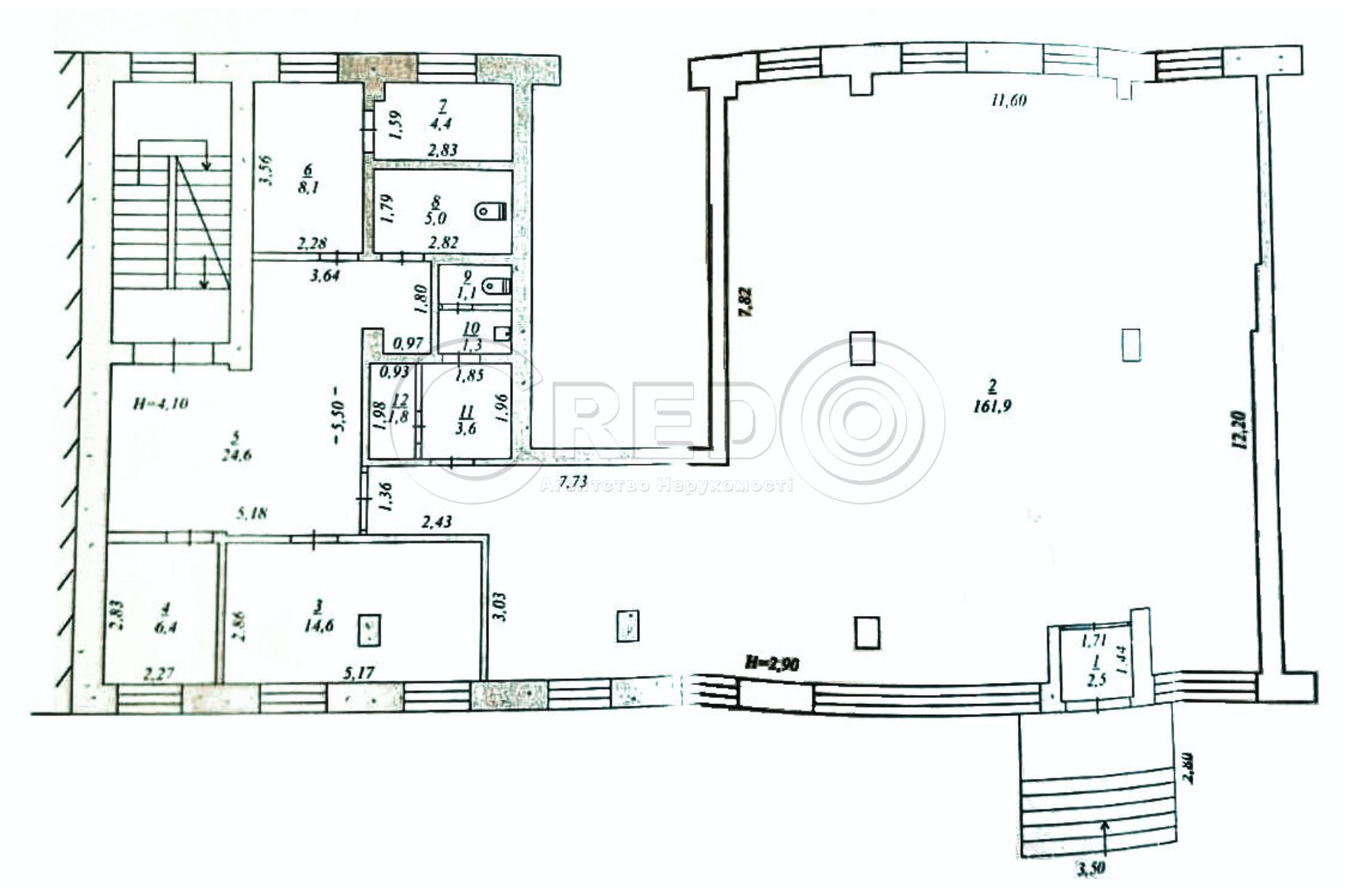
Продаж магазину в центрі Інгульця - вул. Недєліна,28 - Інгулецький район Технічні характеристики: - перший поверх 9-ти поверхового житлового будинку - "червона лінія" - приміщення в робочому стані - великий фасад - парковка Планування об’єкту: - загальна площа -235,3 кв.м - торгівельний зал-162 кв.м - вільне планування - окремий центральний вхід Комунікації: - опалення центральне відрізане - центральне електропостачання 20кВт; 380 Вт - центральне водопостачання, каналізація - пожежна, охоронна сигналізації Логістична розв’язка: - приміщення розташоване в спальному мікрорайоні - центральна частина району - поруч зупинки громадського транспорту - супермаркет "АТБ", магазини, аптеки ," АНЦ" та безліч інших магазинів - великий автомобільний та пішохідний трафік Продаж 120 000у.о. За будь-якими питаннями за цією або іншими пропозиціями звертайтесь за номером телефону 067 696 16 51. З повагою, команда Credo!

Есть информация, о который вы хотите сообщить?

Расположение

АдресДнепропетровская обл., Криворожский район, г. Кривой рог, Недєліна
АН CREDO
Риэлтор
+380 (67) 638 50 54Позвонить
Смотреть все объекты
На домике с 2011 года

Написать владельцу

АН CREDO
Купуй квартиру на Domik.ua
Широкий вибір квартир від власників, забудовників та ріелторів
Подробнее