Продажа офиса 90.6 м², Юбилейный просп., 54
Создано 20 октября, обновлено вчера, 02:30
Код объявления 22409362
- Стоит ли сейчас покупать недвижимость?10.104 714
- Чи варто купити будинок в спокійному регіоні, в Вінниці?17.092
- Завышеные тарифы на отопление. Как обжаловать и куда писать?19.082
- Ипотека от Банков с лучшими условиями | Обсуждение кредитов под залог недвижимости13.08192
- Краудфандинг - типы группового инвестирования01.083
Продажа офиса
Линия домов | Первая | |
Этаж | 1 | |
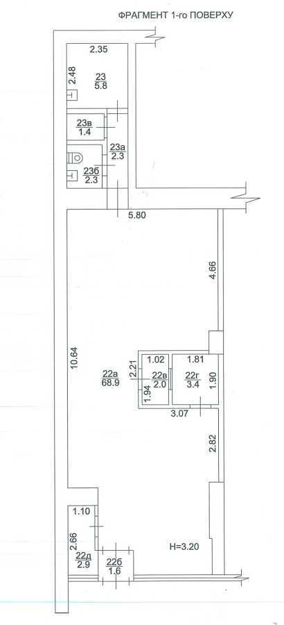
Общая площадь | 90.6 м² | |
Отделка | Типовой ремонт | |
Наличие мебели | Без мебели | |
Отопление | Центральное | |
Год постройки дома | 1975 | |
Этажей в доме | 2 | |
Высота потолков | 3.5 м | |
Тип дома | Торгово-офисный комплекс |
Описание
продаж нежитлового приміщення: м.Харків, пр.Ювілейний, 54. Приміщення розташоване в будівлі кінотеатру Кіноленд (к/т не працює). Загальна площа 90,6 кв.м. (1-й поверх). Приміщення має один окремий вхід (з пр.Ювілейний). Приміщення обладнане системою відеоспостереження, пожежно-тривожною сигналізацією. Планування приміщення дозволяє використовувати його в якості офісних або торгівельних приміщень. Електропотужність 10 кВт. Опалення централізоване, є теплова рамка та окремий лічильник на всю будівлю кінотеатру. Всі комунікації залежать від кінотеатру. Від початку воєнного стану в Україні кінотеатр припинив оплату за опалення, водопостачання, е/е. Власник - юр.особа. Вартість із ПДВ.
Есть информация, о который вы хотите сообщить?
Расположение
АдресХарьков, Юбилейный просп., 54
Ближайшие станции метроАкадемика Павлова
Ближайшие ориентиры:Парк Победы
Loading map...
Написать владельцу


Авторський канал ріелтора в Іспанії
Знайомтесь з Бенідормом, нерухомістю та стилем життя. Новобудови регіону, аналітика, інвестиції
Подробнее