Продажа 3-комнатной квартиры 75 м², Героев Харькова просп., 268
Создано 03 февраля 2021, обновлено сегодня, 18:02
Код объявления 15386811
Продажа квартиры
| Тип | 3-комнатная | |
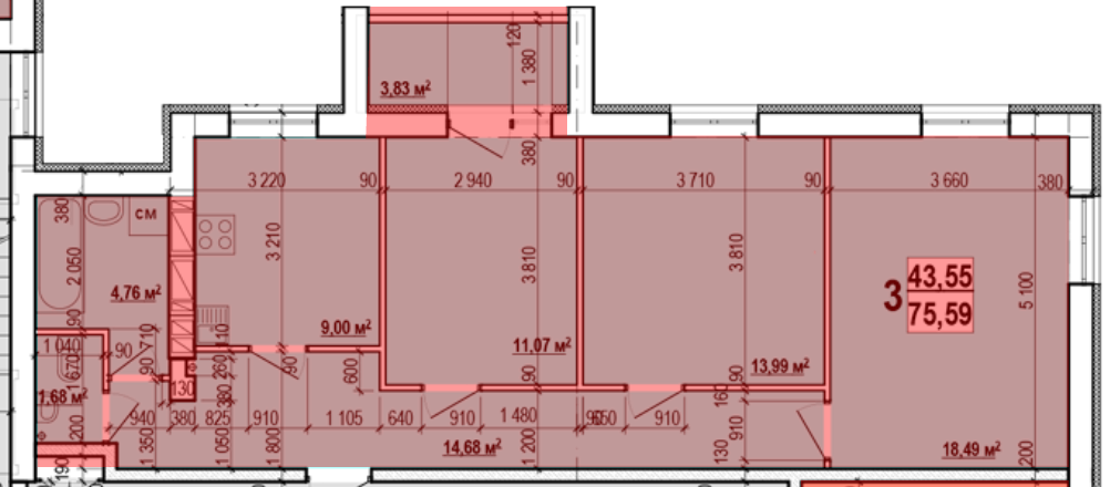
| Общая площадь | 75 м² | |
| Площадь кухни | 9 м² | |
| Жилая площадь | 50 м² | |
| Этаж | 8 | |
| Этажей в доме | 9 | |
| Материал стен | Керамический кирпич | |
| Раздельных санузлов | 1 | |
| Высота потолков | 2.6 м | |
| Дополнительно | Новостройка | |
| Год постройки дома | 2020 |
Описание
Продам 3х.ком.квартиру. ЖК.Мира 2, общ. пл. 75 м2,строительное состояние,этаж 8/9.
Есть информация, о который вы хотите сообщить?
Написать владельцу

Купуй квартиру на Domik.ua
Широкий вибір квартир від власників, забудовників та ріелторів
Подробнее