Продажа дома 210 м², Академика Ефремова ул.
- Стоит ли сейчас покупать недвижимость?30.094 706
- Чи варто купити будинок в спокійному регіоні, в Вінниці?17.092
- Завышеные тарифы на отопление. Как обжаловать и куда писать?19.082
- Ипотека от Банков с лучшими условиями | Обсуждение кредитов под залог недвижимости13.08192
- Краудфандинг - типы группового инвестирования01.083
Продажа дома
Тип | Дом | |
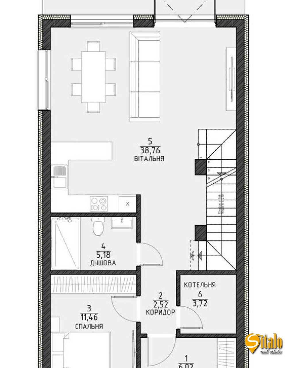
Общая площадь | 210 м² | |
Количество спален | 5 | |
Количество санузлов | 2 | |
Площадь участка | 4 Соток | |
Этажей в доме | 2 | |
Участок угловой | Нет |
Описание
Продаж якісного, сучасного будинку в Києві, з просторим підвалом на всю площу та висотою 2,7 метри. Загальна площа будинку 210 кв.м., підвал 73 кв.м., ділянка 5 соток. Будинок побудований з червоної цегли, утеплений мінеральною ватою, зовнішня стіна товщиною 50 см. Всі роботи виконані під чистове оздоблення. Розведено електрику, опалення, каналізацію та водопостачання. Вода - свердловина та центральна. Каналізація - центральна. Світло - 15 кВт, 3 фази. Заведений газ. Вікна - REHAU В будинку 4 кімнати, велика кухня-вітальня, гардеробна, котельня, тераса та балкон . На подвір'ї парковка на 2 автомобілі. Фасад оздоблений клінкерною плиткою та термодеревом. Зручне розташування, асфальтована дорога. До метро Академгородок 10 хвилин пішки, 5 хвилин хвойний ліс. До ТРЦ Lavina Mall - 5 хвилин автомобілем. Поруч державні школи (№162 в 200-х метрів), дитячі садки, магазини та супермаркети, лікарні та інш. Продаж без комісії. Код об'єкта 13895.
Расположение
Написать владельцу

