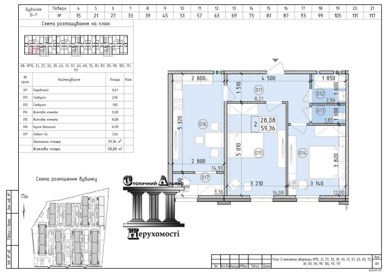
Продажа 2-комнатной квартиры 61 м², Михаила Максимовича ул., 24
- Стоит ли сейчас покупать недвижимость?30.094 706
- Чи варто купити будинок в спокійному регіоні, в Вінниці?17.092
- Завышеные тарифы на отопление. Как обжаловать и куда писать?19.082
- Ипотека от Банков с лучшими условиями | Обсуждение кредитов под залог недвижимости13.08192
- Краудфандинг - типы группового инвестирования01.083
Продажа квартиры
Тип | 2-комнатная | |
Общая площадь | 61 м² | |
Площадь кухни | 16 м² | |
Жилая площадь | 30 м² | |
Этаж | 6 | |
Этажей в доме | 21 | |
Материал стен | Монолитный железобетон | |
Высота потолков | 2.7 м | |
Отделка | Без отделки | |
Дополнительно | Лифт в паркинг | |
Год постройки дома | 2022 |
Описание
Від забудовника! Без додаткових витрат! Будинок ПРЕСТОН. -Квартира 60 кв.м, Будинок "Престон", функціональне планування, дві окремі спальні, та кухня-студіо, яка за бажанням обєднується с лоджією. Лічильники на воду, електроенергію та тепло (автономна котельня). Сучасне фойє, три ліфти, один ліфт спускається в підземний паркінг, також є сходи в паркінг. Біля будинку відкрили новий дитячий майданчик. Вид на Місто. -ЖК "Нова Англія надзвичайне місто в місті, підземний та наземний паркінг, велика школа, дитячий садок, якісні дитячі майданчики, дитячі гуртки, спортивний майданчик, тенісний корт, міні-футбол, барбекю, салони, клініки, сімейний лікар, майданчик для собак, різноманітні кафе, ресторан, маркети. Метро "Васильківська" 10-15 хвилин пішки.
Расположение
Написать владельцу

Продажа квартир рядом
