Продажа 1-комнатной квартиры 41 м², Михаила Максимовича ул., 26В
$60 000 / $1 463 за м²
Создано 02 октября, обновлено вчера, 02:30
Код объявления 22405665
- Стоит ли сейчас покупать недвижимость?30.094 706
- Чи варто купити будинок в спокійному регіоні, в Вінниці?17.092
- Завышеные тарифы на отопление. Как обжаловать и куда писать?19.082
- Ипотека от Банков с лучшими условиями | Обсуждение кредитов под залог недвижимости13.08192
- Краудфандинг - типы группового инвестирования01.083
Продажа квартиры
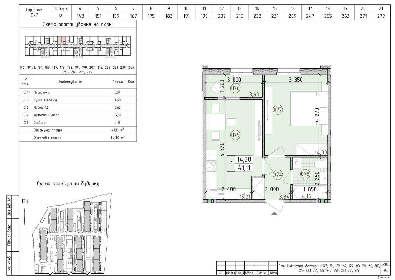
Тип | 1-комнатная | |
Общая площадь | 41 м² | |
Площадь кухни | 16 м² | |
Жилая площадь | 25 м² | |
Этаж | 21 | |
Этажей в доме | 21 | |
Материал стен | Монолитный железобетон | |
Высота потолков | 2.7 м | |
Отделка | Без отделки | |
Дополнительно | Лифт в паркинг | |
Год постройки дома | 2024 |
Описание
БЕЗ ДОДАТКОВИХ ВИТРАТ! Світла 1-кімнатна квартира 41 кв.м, окрема спальня та кухня студіо. Панорамні вікна у тихий двір, лічильники на опалення, воду та електроенергію. В комплексі власна котельня, в будинку три ліфта. компанія "SHERIF" ЖК "Нова Англія" надзвичайне місто в місті, підземний та наземний паркінг, велика школа, дитячий садок, якісні дитячі майданчики, дитячі гуртки, спортивний майданчик, тенісний корт, міні-футбол, салони, клініки, сімейний врач, майданчик для собак, кафе, ресторан, маркети. Метро "Васильківська" 10-15 хвилин пішки.
Есть информация, о который вы хотите сообщить?
Расположение
АдресКиев, Михаила Максимовича ул., 26В
Ближайшие станции метроВыставочный центр, Васильковская
Ближайшие ориентиры:Национальный комплекс "Экспоцентр Украины" (ВДНХ)
Loading map...
Написать владельцу

Продажа квартир рядом

Купуй квартиру на Domik.ua
Широкий вибір квартир від власників, забудовників та ріелторів
Подробнее