Продажа 3-комнатной квартиры 95 м², Валерия Лобановского просп., 15/7
- Стоит ли сейчас покупать недвижимость?30.094 706
- Чи варто купити будинок в спокійному регіоні, в Вінниці?17.092
- Завышеные тарифы на отопление. Как обжаловать и куда писать?19.082
- Ипотека от Банков с лучшими условиями | Обсуждение кредитов под залог недвижимости13.08192
- Краудфандинг - типы группового инвестирования01.083
Продажа квартиры
Тип | 3-комнатная | |
Общая площадь | 95 м² | |
Площадь кухни | 30 м² | |
Этаж | 16 | |
Этажей в доме | 17 | |
Материал стен | Монолитный железобетон | |
Высота потолков | 2.7 м | |
Отделка | Черновая отделка | |
Отопление | Центральное |
Описание
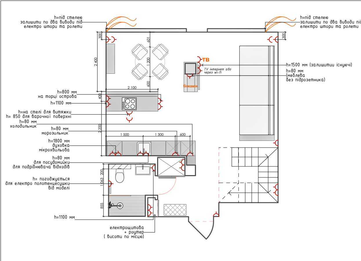
Продаж квартири з панорамним видом. Прос. Лобановського 15/7. 16п/17поверхового будинку 2016 року. Загальна площа - 95кв.м, в двох рівнях. Простора кухня-вітальня, 2 спальні, 2 санвузли, гардеробна кімната. Квартира повністю готова під чистове оздоблення (white box): вирівняні стіни, підлога та стеля, встановлені вікна, проведені електрика, сантехніка та тепла підлога, виконана стяжка. Готовий дизайнерський проект надається з покупкою квартири . Охайний підїзд, зручні ліфти, уважна консєржка, генератор для безперебійного опалення, роботи ліфтів та водопостачання. Закрита територія з цілодобовою охороною та відеонаглядом. Поруч розташовані Соломянський ландшафтний парк та Протасів Яр. В кроковій доступності все необхідне: лікарня, школа, дитячі садки, супермаркети "Новус" та "Ультрамарин", Соломянський ринок. До центру міста всього 7 хвилин на авто. Ціна 190000$
Расположение
Киев, Валерия Лобановского просп., 15/7
Написать владельцу

Продажа квартир рядом
