Аренда другого торгового помещения 46 м², Михаила Максимовича ул., 26В
- Стоит ли сейчас покупать недвижимость?30.094 706
- Чи варто купити будинок в спокійному регіоні, в Вінниці?17.092
- Завышеные тарифы на отопление. Как обжаловать и куда писать?19.082
- Ипотека от Банков с лучшими условиями | Обсуждение кредитов под залог недвижимости13.08192
- Краудфандинг - типы группового инвестирования01.083
Аренда торгового помещения
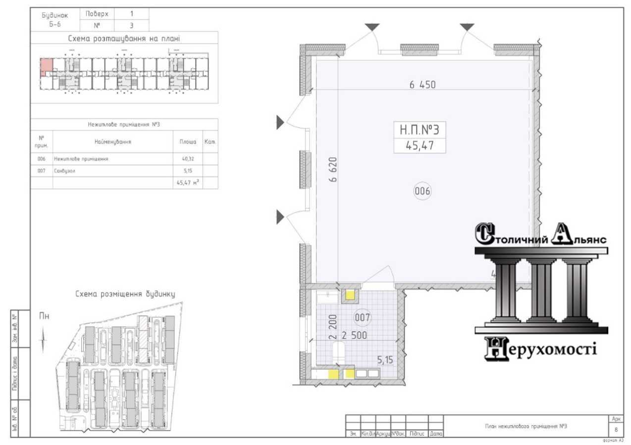
Тип | Другое торговое | |
Линия домов | Первая | |
Этаж | 1 | |
Общая площадь | 46 м² | |
Отделка | Под чистовую отделку | |
Наличие оборудования | С оборудованием | |
Тип помещения | В торговом комплексе | |
Отопление | Автономная котельная | |
Год постройки дома | 2024 | |
Этажей в доме | 21 | |
Высота потолков | 3.5 м | |
Тип дома | Другое назначение | |
Срок аренды | Длительный | |
Тип аренды | Прямая аренда |
Описание
Супер фасад на території комплекса! Кутове приміщення вікна якого виходять на найбільший дитячий майданчик комплексу, та на найбільший спортивний майданчик комплексу, де зосереджені такі орендарі як Нова Пошта, Епіцентр, Архітектор краси, Камелія! Будинок " НОТІНГЕМ" Найкраще приміщення з фасадом на спорт майданчик ЖК "Нова Англія, вул. Максимовича Максима. 1-й поверх, загальна площа 50 кв.м, чотири входи, фасад виходять на найкращу локацію в комплексі - найбільший дитячий майданчик, де зосереджена найжвавіша діяльність серед мешканців! Висота стелі Н=3,5 метри, лічильники на воду, електро та тепло (автономна котельня в комплексі). -ЖК "Нова Англія" це надзвичайне місто в місті, 14-будинків на 4600 квартир, підземний та наземний паркінг, велика школа, дитячий садок, якісні дитячі майданчики, дитячі гуртки, спортивний майданчик, тенісний корт, міні-футбол, барбекю, салони, клініки, сімейний врач, майданчик для собак, кафе, ресторан, маркети. Метро "Васильківська" 10-15 хвилин пішки. Агентство у "Новій Англії", ОПЕРАТИТИВНИЙ ПОКАЗ !
Расположение
Написать владельцу

Аренда торговых помещений рядом
