Аренда офиса 291.2 м², Бульварно-Кудрявская ул., 24
- Стоит ли сейчас покупать недвижимость?30.124 921
- Двоповерхові квартири в новобудовах, переваги та недоліки, враження?30.1213
- Походження грошей на купівлю квартири при її продажу27.126
- Застройщик предлагает только дарственную вместо купли-продажи. Насколько это популярно?23.1210
- Дно рынка недвижимости и влияющие факторы16.1115 264
Аренда офиса
| Линия домов | Первая | |
| Вход | Общий с улицы | |
| Этаж | 1 | |
| Общая площадь | 291.2 м² | |
| Отделка | Типовой ремонт | |
| Наличие мебели | Без мебели | |
| Инфраструктура | Аптека, Банкомат, Кафе, Минимаркет, Нотариальная контора, Отделение банка, Ресторан, Салон красоты, Центральная рецепция | |
| Парковка | Наземная, Подземная | |
| Дни работы | Ежедневно | |
| Этажей в доме | 4 | |
| Высота потолков | 5 м | |
| Название комплекса | РЕНЕССАНС | |
| Тип дома | Бизнес-центр | |
| Класс здания | B | |
| Срок аренды | Длительный | |
| В ставку включены | НДС, Эксплуатационные расходы | |
| Тип аренды | Прямая аренда |
Описание
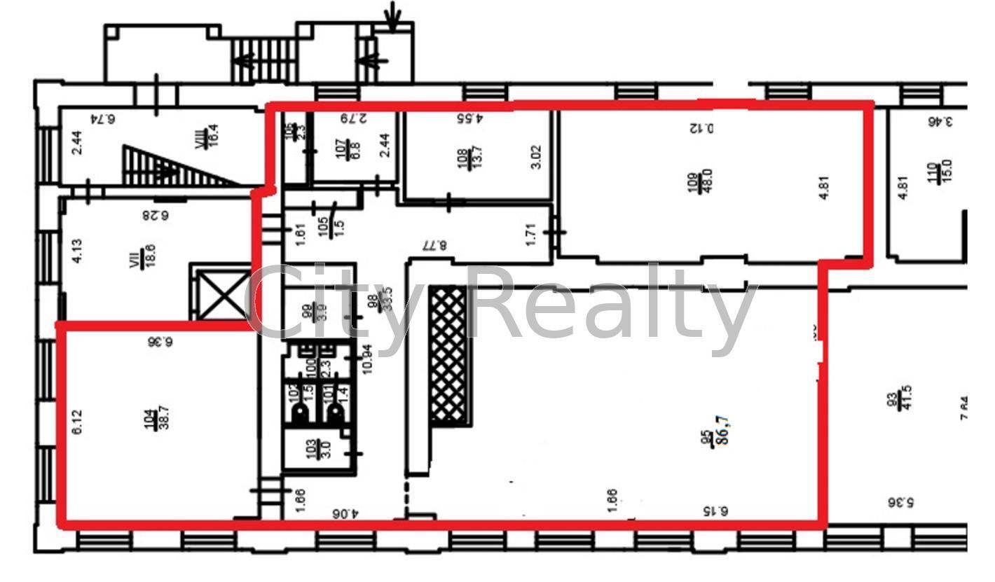
Без комісії. Пропонується в оренду офісне приміщення: Загальна площа – 291.2 м2, корисна площа – 260 м2 (коефіцієнт загальних площ – 1.12), вул. Бульварно-Кудрявська 24, Бізнес Центр, Шевченківський район, 1/4 поверх, цілодобова охорона, доступ 24/7, власник Юр. Особа з ПДВ. Стан приміщення згідно фото, ремонтні канікули. Пропонується без меблів. Планування - 2 Open space, 3 кабінета, хол, серверна, кухня, блок санвузлів. В будівлі: Цілодобова охорона, укриття, встановлений потужний генератор. Базова орендна ставка: 12 дол./м², експлуатаційні: 6 дол./м², окремо оплачуються комунальні платежі. Паркінг у дворі - 100 $/за 1 місце в місяць. Форма и валюта оплати – гривна, безготівковий розрахунок, гривневий еквівалент згідно курсу долара США за даними НБУ. Найближче метро Університет, 15 хвилин пішим кроком.
Расположение
Киев, Бульварно-Кудрявская ул., 24
Написать владельцу
