Аренда офиса 375 м², Евгения Сверстюка ул., 11
- Стоит ли сейчас покупать недвижимость?30.094 706
- Чи варто купити будинок в спокійному регіоні, в Вінниці?17.092
- Завышеные тарифы на отопление. Как обжаловать и куда писать?19.082
- Ипотека от Банков с лучшими условиями | Обсуждение кредитов под залог недвижимости13.08192
- Краудфандинг - типы группового инвестирования01.083
Аренда офиса
Линия домов | Первая | |
Этаж | 3 | |
Общая площадь | 375 м² | |
Наличие мебели | Без мебели | |
Отопление | Центральное | |
Этажей в доме | 3 | |
Высота потолков | 2.75 м | |
Тип дома | Бизнес-центр | |
Срок аренды | Длительный | |
Тип аренды | Прямая аренда |
Описание
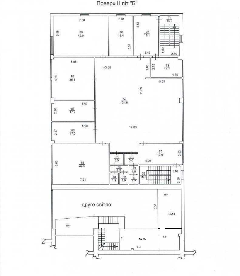
УНІКАЛЬНА ЛОКАЦІЯ: 2 хвилини до Метро, 20 хвилин на авто до центра міста, зручний міський транспорт. Прекрасний офіс 375м2 за адресою вулиця Євгена Сверстюка 11Б в 2-х хвилинах від м. Лівобережна в Бізнес Центрі АРМАРІС. Приміщення розташоване на 3-му поверсі окремий вхід, закрита територія. Великий зал (open space)- 140 м2, просторий кабінет для керівництва, переговорні кімнати (загалом 6 кабінетів від 20 до 45 м2) ресепшн, серверна з кондиціонером, велика кухня 20м2. Присутня окрема зона з умивальниками та трьома туалетними кімнатами. В БЦ Армаріс: - служба сервісу; - цілодобова охорона будівель та території; - контрольно-пропускна система для безпеки Клієнтів та гостей; - паркування за додаткову плату. Розвинена інфраструктура в БЦ Армаріс і навколо: - безліч закладів харчування; - магазини; - НОВА ПОШТА; - ЕПІЦЕНТР; - КРЕДОБАНК; - Клініка МАЙДЕРМ; - Кондитерська MAYA CAKE; - Нотаріус; - Фітнес-студія HIITWORKS; - Салон краси VOXI; ЗОВНІШНЯ ІНФРАСТРУКТУРА: McDonalds. NOVUS, банки, нотаріуси, кавярні, ресторани, піцерії, магазини, ринок, аптеки, готель ТУРИСТ, Пузата Хата, Євразія. СЕРВІС-УПРАВЛІННЯ: безперебійне енерго- і водопостачання ( ПІДКЛЮЧЕНИЙ ПОТУЖНИЙ ГЕНЕРАТОР на весь Бізнес Центр) , інтернет- провайдери на вибір, паркомісця під охороною та відеонаглядом , клінінг, технічне обслуговування, цілодобовий пост охорони, системи контроля доступу , юридичні адреси з адмініструванням. Додатково сплачується комунал та експлуатаційні послуги. БЕЗ ПДВ. Леся 0973993126 або 0932163818
Расположение
Киев, Евгения Сверстюка ул., 11
Написать владельцу

