Аренда офиса 101 м², Глубочицкая ул., 40У
Аренда офиса
| Линия домов | Вторая | |
| Вход | Общий со двора | |
| Этаж | 5 | |
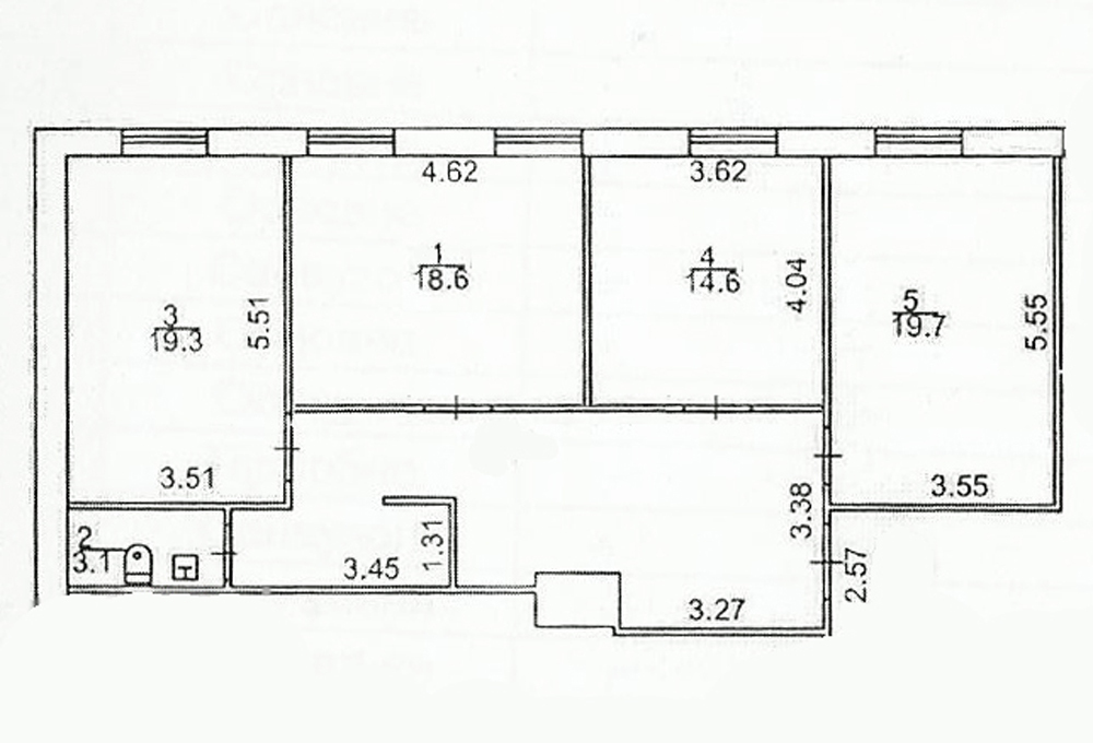
| Общая площадь | 101 м² | |
| Отделка | Типовой ремонт | |
| Наличие мебели | Без мебели | |
| Инфраструктура | Кафе, Медицинский центр | |
| Парковка | Наземная | |
| Дни работы | Ежедневно | |
| Год постройки дома | 2014 | |
| Этажей в доме | 5 | |
| Высота потолков | 3.8 м | |
| Тип дома | Бизнес-центр | |
| Класс здания | B | |
| Срок аренды | Длительный | |
| Предоплата, мес. | 1 | |
| Тип аренды | Прямая аренда |
Описание
Офіс розташований на 5-му поверсі 5-поверхової бізнес центру, розташованої за 10 хвилин пішки до м. Контрактова площа. Навпроти БЦ — зупинка громадського транспорту. В офісі 4 великі кімнати (у кожній кондиціонер), один великий open space, санвузол, додатково виведена мокра точка під кухню. Дуже світлий офіс, що дозволяє використовувати його під будь-який вид діяльності. У будівлі цілодобова охорона, відеоспостереження, ліфт, презентабельна вхідна група та прилегла територія, розвинена інфраструктура. В офісі встановлено ЛІЧІЛЬНИК на опалення! В двох кімнатах ролети на вікнах, розводка сігналізації!Бізнес-центр має власну котельню. Додатково оплачуються комунальні послуги за лічильниками + експлуатаційні послуги. Доступ 24/7. Є можливість поділу офісу на кімнати. Вартість кімнати — 10000 грн, вартість усього офісу — 34500 грн. Власник — ФОП 2 група. Офіс вільний з 1 травня 2026 року, перегляди можливі за домовленістю. Без комісії! Можліва індивідуальна знижка!
Расположение
Киев, Глубочицкая ул., 40У
Написать владельцу
