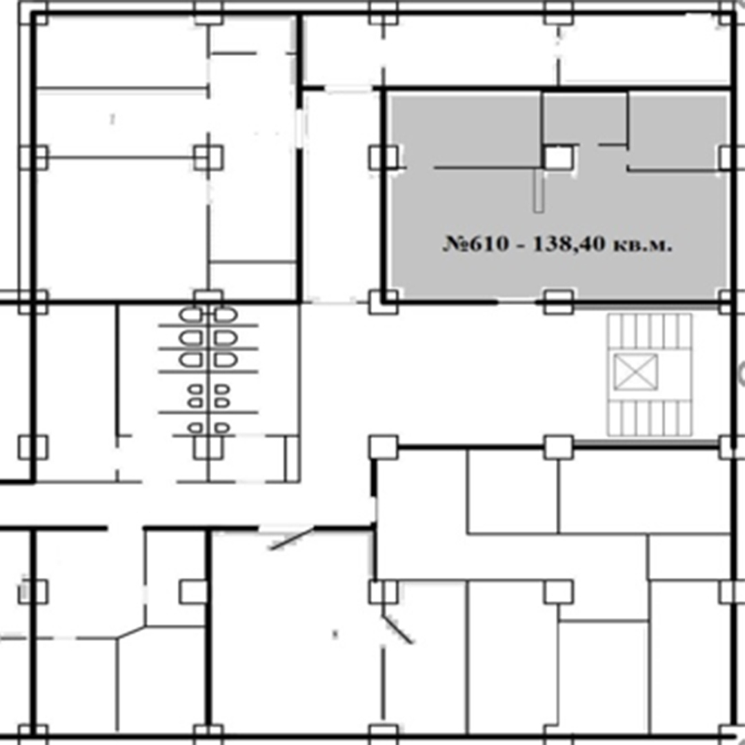
Аренда офиса 138.4 м², Митрополита Василия Липковского ул.
Аренда офиса
| Линия домов | Первая | |
| Вход | Общий с улицы, Общий со двора | |
| Этаж | 6 | |
| Общая площадь | 138.4 м² | |
| Отделка | Типовой ремонт | |
| Наличие мебели | Без мебели | |
| Инфраструктура | Автомойка, Автосервис, Аптека, Ателье одежды, Бассейн, Кинотеатр, Банкомат, Кафе, Гостиница, Выставочно-складской комплекс, Буфет, Конференц-зал, Медицинский центр, Минимаркет, Складские помещения, Ресторан, Салон красоты, Парк, Торговая зона, Фитнес-центр, Фотосалон, Отделение банка, Супермаркет, Нотариальная контора, Столовая, Центральная рецепция | |
| Парковка | Наземная | |
| Этажей в доме | 9 | |
| Тип дома | Жилой многоквартирный дом | |
| Срок аренды | Длительный | |
| В ставку включены | НДС, Эксплуатационные расходы | |
| Тип аренды | Прямая аренда |
Описание
Оренда офісу 138.4 м² у Бізнес-Центрі на Соломянській площі зручне місце для вашого бізнесу (вул. Митрополита Василя Липківського, 45). Офіс: Площа 138.4 м² 6-й поверх Гарний вид на Солом'янську площу Усі комунікації Свіжий ремонт заїжджай та працюй Кондиціонер у приміщенні Інфраструктура БЦ: Відділення банку, нотаріус Кафе та ресторан Страхова компанія Фітнес клуб Переваги: Світло завжди є; Керуюча компанія - швидко зреагуємо на будь-яке питання та допоможемо його вирішити; Пропускна система за електронними перепустками; Сучасні інженерні та телекомунікаційні системи; Парковка на 100 авто. Умови оренди: 400 грн/м² Пряма оренда від власника (договір на 3 роки) Офіс із новим ремонтом готовий до заселення. Запишіться на перегляд вже сьогодні подивіться простір наживо, порівняйте альтернативи та оберіть оптимальний варіант для вашого бізнесу. Телефонуйте прямо зараз!
Расположение
Написать владельцу
