Аренда офиса 102 м², Святошинская ул.
Создано 29 сентября, обновлено вчера, 02:30
Код объявления 22404921
- Стоит ли сейчас покупать недвижимость?30.094 706
- Чи варто купити будинок в спокійному регіоні, в Вінниці?17.092
- Завышеные тарифы на отопление. Как обжаловать и куда писать?19.082
- Ипотека от Банков с лучшими условиями | Обсуждение кредитов под залог недвижимости13.08192
- Краудфандинг - типы группового инвестирования01.083
Аренда офиса
Линия домов | Вторая | |
Этаж | 3 | |
Общая площадь | 102 м² | |
Наличие мебели | Без мебели | |
Отопление | Автономная котельная | |
Этажей в доме | 3 | |
Высота потолков | 3 м | |
Тип дома | Административное здание | |
Срок аренды | Длительный | |
Тип аренды | Прямая аренда |
Описание
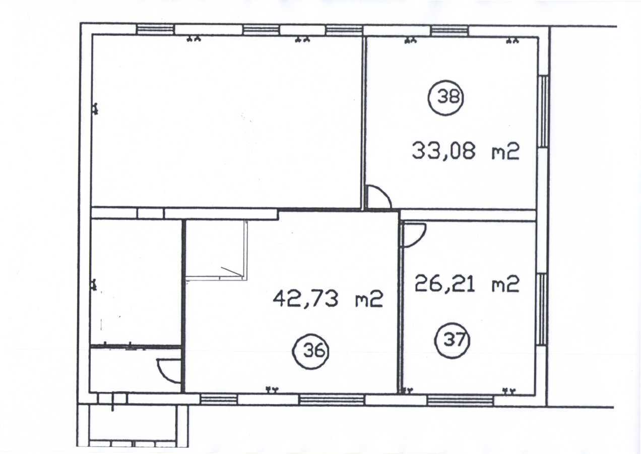
Здається в оренду офісне приміщення 102 кв.м. на 3/3 адмінбудівлі , не фасад. Приміщення офісу складається з трьох кімнат (39+33+26 кв.м.) та міні кухні 4 кв.м. На 1му поверсі є вільний склад/майстерня 89 кв.м. Орендна ставка 180 грн/кв.м.. з ПДВ. + комунальні, експлуатаційні, опалення. Електроенергія 8,50-10,00грн за кВт Експлуатаційні 1100грн. Опалення 600-900 кВт * 8,5-10,0грн = 5000-8500грн (50-80грн./кв.м. індивідуальний електрокотел , температура регулюється. Локація Святошин вул.Святошинська , до метро пішки. Не фасад. Територія під охороною. Окремо агентська комісія.
Есть информация, о который вы хотите сообщить?
Расположение
АдресКиев, Святошинская ул.
Ближайшие станции метроСвятошин, Нивки
Ближайшие ориентиры:Парк с оленями, Сквер им. Героев Отечественной авиации, парк "Совки", Дубовая роща
Loading map...
Написать владельцу


Купуй квартиру на Domik.ua
Широкий вибір квартир від власників, забудовників та ріелторів
Подробнее