Подать объявление

Аренда офиса 102 м², Святошинская ул.

Аренда офиса 102 м², Святошинская ул.
Аренда офиса 102 м², Святошинская ул.
Аренда офиса 102 м², Святошинская ул.
Аренда офиса 102 м², Святошинская ул.

Аренда офиса

Линия домовВторая
Этаж3
Общая площадь102 м²
Наличие мебелиБез мебели
ОтоплениеАвтономная котельная
Этажей в доме3
Высота потолков3 м
Тип домаАдминистративное здание
Срок арендыДлительный
Тип арендыПрямая аренда

Описание

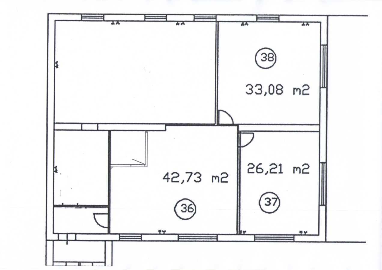
Здається в оренду офісне приміщення 102 кв.м. на 3/3 адмінбудівлі , не фасад. Приміщення офісу складається з трьох кімнат (39+33+26 кв.м.) та міні кухні 4 кв.м. На 1му поверсі є вільний склад/майстерня 89 кв.м. Орендна ставка 180 грн/кв.м.. з ПДВ. + комунальні, експлуатаційні, опалення. Електроенергія 8,50-10,00грн за кВт Експлуатаційні 1100грн. Опалення 600-900 кВт * 8,5-10,0грн = 5000-8500грн (50-80грн./кв.м. індивідуальний електрокотел , температура регулюється. Локація Святошин вул.Святошинська , до метро пішки. Не фасад. Територія під охороною. Окремо агентська комісія.

Есть информация, о который вы хотите сообщить?

Расположение

АдресКиев, Святошинская ул.
Ближайшие станции метроСвятошин, Нивки
Ближайшие ориентиры:Парк с оленями, Сквер им. Героев Отечественной авиации, парк "Совки", Дубовая роща
Алена
Риэлтор
+380 (98) 794 55 62Позвонить
Смотреть все объекты
На домике с 2011 года

Написать владельцу

Алена

Аренда офисов рядом

Киев, Чистяковская ул.
Киев, Чистяковская ул.
4 140 грн/месяц
Офис, 18 м²
сегодня, 08:23
Киев, Победы просп.
Киев, Победы просп.
19 200 грн/месяц
Офис, 80 м²
сегодня, 08:23
Киев, Академика Туполева ул.
Киев, Академика Туполева ул.
6 000 грн/месяц
Офис, 19 м²
1 неделю назад
Киев, Феодоры Пушиной ул.
Киев, Феодоры Пушиной ул.
12 500 грн/месяц
Офис, 50 м²
сегодня, 08:23
Купуй квартиру на Domik.ua
Широкий вибір квартир від власників, забудовників та ріелторів
Подробнее