Аренда помещения свободного назначения 95 м², Соборная пл.
Создано 26 мая, обновлено 28 ноября
Код объявления 22378016
Аренда помещения свободного назначения
| Тип | Аптека, Банк, Детский сад, Гостиница, Магазин, Мастерская, Медицинский центр, Офис, Парикмахерская, Салон красоты, Стоматология, Фотостудия, Школа, Шоурум | |
| Линия домов | Первая | |
| Вход | Отдельный с улицы | |
| Этаж | 1 | |
| Общая площадь | 95 м² | |
| Отделка | Типовой ремонт | |
| Наличие мебели | Без мебели | |
| Инфраструктура | Минимаркет | |
| Парковка | Наземная | |
| Год постройки дома | 1950 | |
| Этажей в доме | 3 | |
| Высота потолков | 3 м | |
| Название комплекса | офис | |
| Тип дома | Жилой многоквартирный дом | |
| Класс здания | B | |
| Срок аренды | Длительный | |
| Предоплата, мес. | 1 | |
| Тип аренды | Прямая аренда |
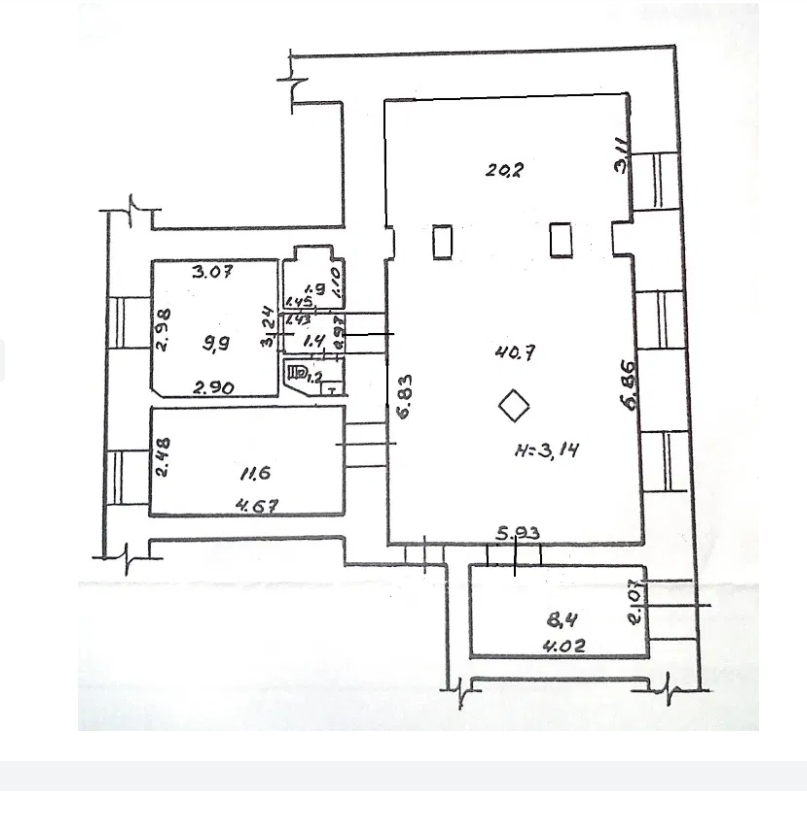
Описание
Сдам фасадное помещение 95м под офис Соборная площадь/ул. Преображенская, 1\3, 95м. Загальна площа: 95 м² Cанвузол: Так Опалення: Централізоване Ремонт: Так Комфорт: Кондиціонер, Сигналізація, Гостьовий паркінг Опис Сдам фасадное помещение пл. Соборная/ул. Преображенская, общая площадь 95 м.кв. Фасадный вход и 3 окна. Зал 40+20м, кабинет 12м, кабинет 10м, холл, подсобка, с/у. Кондиционер. 2-й вход. Н-3,15м. Хорошо подходит под страховую компанию, отделение банка, хороший офис, магазин. цена аренды 1000 уе. в месяц.
Есть информация, о который вы хотите сообщить?
Расположение
АдресОдесса, Соборная пл.
Ближайшие ориентиры:Соборная площадь, Городской сад, Одесский цирк, Дом Ученых, Старобазарный сквер
Loading map...
Написать владельцу

Аренда помещений свободного назначения рядом
Авторський канал ріелтора в Іспанії
Знайомтесь з Бенідормом, нерухомістю та стилем життя. Новобудови регіону, аналітика, інвестиції
Подробнее