Аренда офиса 60 м², Генуэзская ул.
- Стоит ли сейчас покупать недвижимость?01.014 922
- Двоповерхові квартири в новобудовах, переваги та недоліки, враження?30.1213
- Походження грошей на купівлю квартири при її продажу27.126
- Застройщик предлагает только дарственную вместо купли-продажи. Насколько это популярно?23.1210
- Дно рынка недвижимости и влияющие факторы16.1115 264
Аренда офиса
| Линия домов | Первая | |
| Вход | Отдельный со двора | |
| Этаж | 1 | |
| Общая площадь | 60 м² | |
| Отделка | Типовой ремонт | |
| Наличие мебели | С мебелью | |
| Инфраструктура | Минимаркет | |
| Парковка | Наземная, Подземная | |
| Год постройки дома | 2015 | |
| Этажей в доме | 24 | |
| Высота потолков | 3 м | |
| Название комплекса | офис | |
| Тип дома | Жилой многоквартирный дом | |
| Класс здания | A | |
| Срок аренды | Длительный | |
| Предоплата, мес. | 1 | |
| Тип аренды | Прямая аренда |
Описание
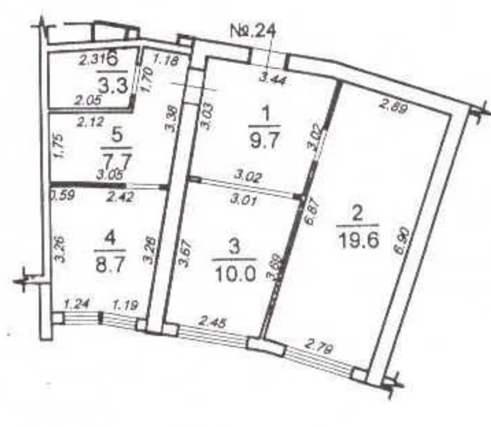
Сдам помещение 60м с мебелью под офис Аркадия Ж.К. 26 Жемчужина, 1\24, 60м. Розташування: Окреме приміщення Тип об'єкта: Нежитлове приміщення у житловому фонді Загальна площа: 60 м² Cанвузол: Так Тип офісу: Кабінетний тип Опалення: Власна котельня Клас офісу: Категорія A Ремонт: Так Комфорт: Відеоспостереження, Кондиціонер, Пожежна сигналізація, Підземний паркінг, Меблі на кухні, Паркувальне місце, Охорона території, Душова кабіна, Автономний електрогенератор, Гардероб Меблювання: Так Побутова техніка: Електрочайник, Холодильник, Мікрохвильова піч Комунікації: Асфальтована дорога, Центральна каналізація, Електрика, Центральний водопровід Опис Оренда топ-офісу 60 м² у ЖК "26 Жемчужина" (Генуезька, 3А). у офісі світ 24/7, укриття, 3 кабінети + кухня, совмещений санвузел. БЕЗПЕКА ТА АВТОНОМНІСТЬ — ПРАЦЮЙТЕ БЕЗ ТУРБОТ! Ключові плюси для Вашого бізнесу: • Світ 24/7: без доп. витрат, стабільний інтернет без збоїв. • Укриття всередині — за секунду, без виходу на вулицю. • Охорона: 24/7 відео, домофон, 2 евакуаційні виходи. • Комфорт: євроремонт, офісні меблі, шафа-вбудова, 2 кондиціонери, Wi-Fi, масажне крісло. Заїзд за 1 день! • Планування: • 3 кабінети: 8,7 м², 19,7 м² (open-space на 4–6 місць), 19,6 м² (кабінет обладнаний на 2 роб. місця, можна розмістити більше за бажанням). • Кухня: холодильник, плита, витяжка, мийка, кулер, мікрохвильовка, міні-барна стійка. • Санвузол: туалет + душ з бойлером. • Паркінг (окремо). • Аркадія: море — 10 хв, Le Silpo, Сади Перемоги, кафе, транспорт — поруч! цена аренды 590 уе. в месяц.
Расположение
Написать владельцу
