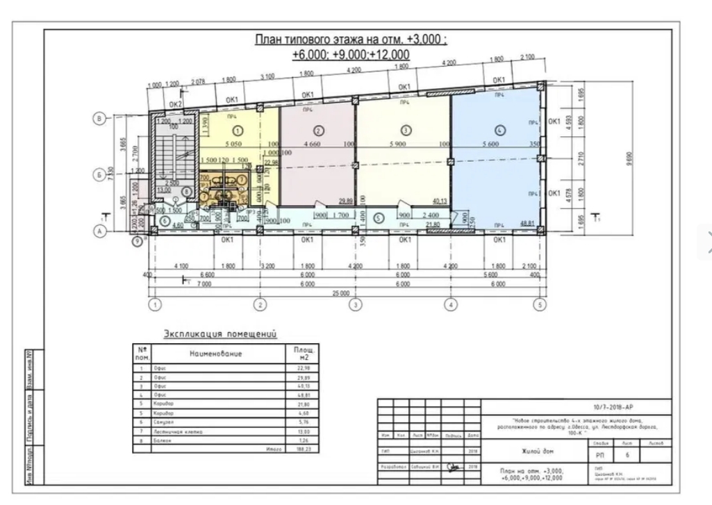
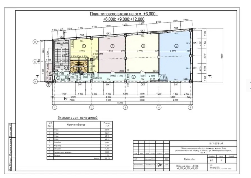
Аренда офиса 188 м², Люстдорфская дор.
- Дно рынка недвижимости и влияющие факторы04.1115 253
 - Стоит ли сейчас покупать недвижимость?29.104 723
 - Чи варто купити будинок в спокійному регіоні, в Вінниці?17.092
 - Завышеные тарифы на отопление. Как обжаловать и куда писать?19.082
 - Ипотека от Банков с лучшими условиями | Обсуждение кредитов под залог недвижимости13.08192
 
Аренда офиса
| Линия домов | Первая | |
| Вход | Общий с улицы | |
| Этаж | 4 | |
| Общая площадь | 188 м² | |
| Отделка | Типовой ремонт | |
| Наличие мебели | Без мебели | |
| Инфраструктура | Минимаркет | |
| Парковка | Наземная | |
| Год постройки дома | 2015 | |
| Этажей в доме | 5 | |
| Высота потолков | 3 м | |
| Название комплекса | офис | |
| Тип дома | Бизнес-центр | |
| Класс здания | A | |
| Срок аренды | Длительный | |
| Предоплата, мес. | 1 | |
| Тип аренды | Прямая аренда | 
Описание
Сдам помещение 188м под офис 4 ст. Люстдорфской дороги, 4\5, 188м. Тип об'єкта: Бізнес центр Загальна площа: 188 м² Cанвузол: Так Тип офісу: Кабінетний тип Опалення: Індивідуальне газове Ремонт: Так Меблювання: Ні Опис Здається в оренду сучасний офіс — цілий поверх у бізнес-центрі. Локація: район 4-ї станції Люстдорфської дороги. Офіс розташований на 4-му поверсі 5-поверхового бізнес-центру. Планування: • 4 просторі кабінети; • окремий кабінет директора; • 2 санвузли. Переваги: • підійде під будь-який вид діяльності; • на території є парковка; • встановлений генератор — автономне живлення у разі відключень; • централізоване опалення; • прибирається поверх. Зручна транспортна розв’язка — легко дістатися з будь-якої частини міста. цена аренды 31000 гривен в месяц.
Расположение
Написать владельцу
