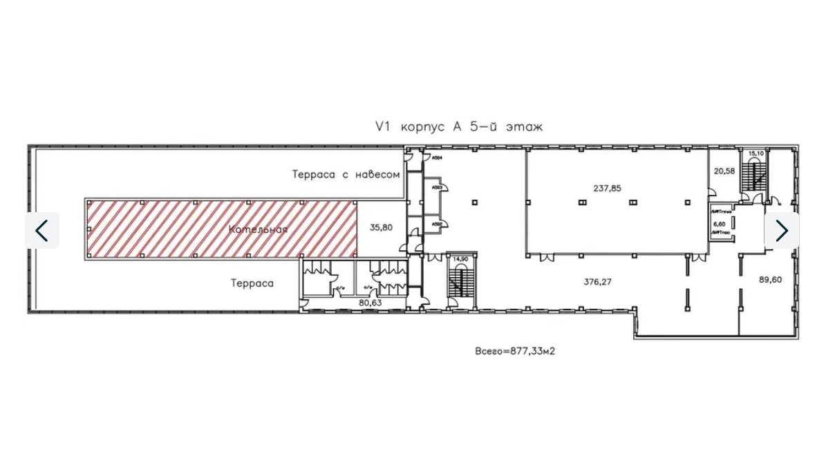
Аренда офиса 877 м², Столбовая ул.
- Стоит ли сейчас покупать недвижимость?14.014 964
- Двоповерхові квартири в новобудовах, переваги та недоліки, враження?30.1213
- Походження грошей на купівлю квартири при її продажу27.126
- Застройщик предлагает только дарственную вместо купли-продажи. Насколько это популярно?23.1210
- Дно рынка недвижимости и влияющие факторы16.1115 264
Аренда офиса
| Линия домов | Вторая | |
| Вход | Общий с улицы | |
| Этаж | 5 | |
| Общая площадь | 877 м² | |
| Отделка | Типовой ремонт | |
| Наличие мебели | Без мебели | |
| Инфраструктура | Минимаркет | |
| Парковка | Наземная | |
| Год постройки дома | 2000 | |
| Этажей в доме | 5 | |
| Высота потолков | 3 м | |
| Название комплекса | офис | |
| Тип дома | Бизнес-центр | |
| Класс здания | A | |
| Срок аренды | Длительный | |
| Предоплата, мес. | 1 | |
| Тип аренды | Прямая аренда |
Описание
Сдам помещение 877м под офис ул. Боженко\ул. Столбовая, 5\5, 877м. Опис До оренди пропонується офісне приміщення площею 877 кв.м. 240 кв.м. у тому числі - open space. у Бізнес-центрі по вул. Боженка. У будівлі працює ліфт. Технічні характеристики: - потужна UPS; - Місткості для підтримки безперебійного водопостачання; - дизель генератор; - Ліфт; - пожежна сигналізація; - система кондиціонування; - 2 під'їзди, що забезпечують мобільність пересування. Для Ваших співробітників завжди доступні: - простора їдальня з широким асортиментом смачних страв; - Конференц зал; - Зелений парк з альтанками та фонтаном всередині комплексу. - парковка для співробітників - Reception - територія, що охороняється. Вартість оренди 4у.о. цена аренды 3508 уе. в месяц.
Расположение
Написать владельцу
