Подать объявление
К сожалению все квартиры c данной планировкой проданы
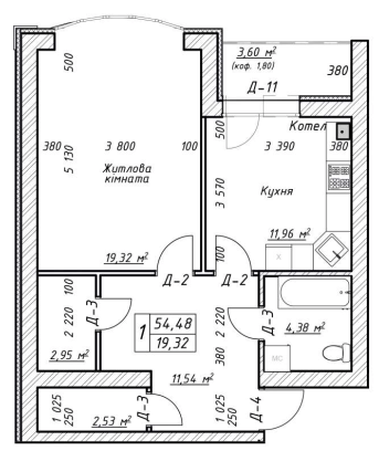
1-комнатная 54.48 м² в ЖК Гранд Парк от 19 000 грн/м², г. Бровары

Однокомнатная планировка квартиры 54.48 м² в ЖК Гранд Парк, г. Бровары

Общая площадь54.48 м²
Этажи1-4 / 5
Жилая площадь19.32 м²
Площадь кухни11.96 м²
1.04 млн Грн
/ 19 000 грн/м²
+380 (67) 101 35 00Позвонить

Другие 1-комнатные планировки, ЖК Гранд Парк

1-комнатная 46.05 м² в ЖК Гранд Парк от 21 000 грн/м², г. Бровары
Цена:
III квартал 2022
967 тыс Грн46.05 м²
Этаж 2-5 / 6
1-комнатная 46.72 м² в ЖК Гранд Парк от 21 000 грн/м², г. Бровары
Цена:
III квартал 2022
981 тыс Грн46.72 м²
Этаж 2-6 / 6
1-комнатная 51.4 м² в ЖК Гранд Парк от 21 000 грн/м², г. Бровары
Цена:
II квартал 2022
1.08 млн Грн51.4 м²
Этаж 1-4 / 5
1-комнатная 53.57 м² в ЖК Гранд Парк от 21 000 грн/м², г. Бровары
Цена:
III квартал 2022
1.12 млн Грн53.57 м²
Этаж 6 / 6
1-комнатная 57.47 м² в ЖК Гранд Парк от 21 000 грн/м², г. Бровары
Цена:
III квартал 2022
1.21 млн Грн57.47 м²
Этаж 2-5 / 6
1-комнатная 40.07 м² в ЖК Гранд Парк от 16 000 грн/м², г. Бровары
Цена:
I квартал 2022
продано40.07 м²
Этаж 1-3 / 3+мансарда
1-комнатная 41.09 м² в ЖК Гранд Парк от 14 000 грн/м², г. Бровары
Цена:
I квартал 2022
продано41.09 м²
Этаж 2-5 / 3+мансарда
1-комнатная 42.88 м² в ЖК Гранд Парк от 19 000 грн/м², г. Бровары
Цена:
II квартал 2022
продано42.88 м²
Этаж 5 / 5
1-комнатная 43.1 м² в ЖК Гранд Парк от 16 000 грн/м², г. Бровары
Цена:
I квартал 2022
продано43.1 м²
Этаж 1-3 / 3+мансарда
1-комнатная 44.37 м² в ЖК Гранд Парк от 16 000 грн/м², г. Бровары
Цена:
I квартал 2022
продано44.37 м²
Этаж 1-3 / 3+мансарда
1-комнатная 44.66 м² в ЖК Гранд Парк от 19 000 грн/м², г. Бровары
Цена:
II квартал 2022
продано44.66 м²
Этаж 2-5 / 5
1-комнатная 49.67 м² в ЖК Гранд Парк от 19 000 грн/м², г. Бровары
Цена:
II квартал 2022
продано49.67 м²
Этаж 2-5 / 5
1-комнатная 55.02 м² в ЖК Гранд Парк от 14 500 грн/м², г. Бровары
Цена:
II квартал 2022
продано55.02 м²
Этаж 2-5 / 5
Цены на однокомнатные от застройщика актуальны на 07.02.2022
до окончания строительства. Первый взнос от 50%
Заметили неточность? Сообщите нам
Проф-Буд ЛТДПроф-Буд ЛТД
Застройщик
Проф-Буд ЛТД
+380 (67) 101 35 00Позвонить

Расположение

Адресул. Фельдмана, 1
Loading map...

Задайте вопрос застройщику

Отдел продаж ЖК "Гранд Парк"
Авторський канал ріелтора в Іспанії
Знайомтесь з Бенідормом, нерухомістю та стилем життя. Новобудови регіону, аналітика, інвестиції
Подробнее
+34624407828xxxx
РИЕЛ

РИЕЛ

93 дома строят в 14 ЖК
46 готовых домов в 25 ЖК с 2013 года
Киевгорстрой

Киевгорстрой

61 дом строят в 21 ЖК
167 готовых домов в 76 ЖК с 2010 года
Blago

Blago

60 домов строят в 15 ЖК
24 готовых дома в 5 ЖК с 2013 года
Трест Жилстрой-1

Трест Жилстрой-1

59 домов строят в 11 ЖК
181 готовый дом в 36 ЖК с 2012 года
Comfort Life

Comfort Life

54 дома строят в 9 ЖК
50 готовых домов в 10 ЖК с 2012 года