Подать объявление
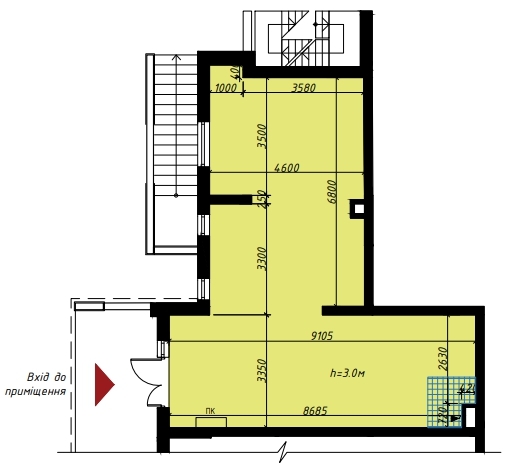
Офис 62.15 м² в ЖК Малахит от застройщика, Киев

Офис 62.15 м² в ЖК Малахит, Киев

Общая площадь62.15 м²
Этажи1 / 8-6-13-25
от застройщика
+380 (44) 391 06 15Позвонить

Другие офисные помещения, ЖК Малахит

Офис 53.4 м² в ЖК Малахит от застройщика, Киев
Цена:
III квартал 2019
от застройщика53.4 м²
Этаж 1 / 8-6-13-25
Заметили неточность? Сообщите нам
Интергал-БудИнтергал-Буд
Застройщик
Интергал-Буд
+380 (44) 391 06 15Позвонить

Расположение

Адресул. Богдановская, 7А
Ближайшие станции метроВокзальная
Ближайшие ориентирыПарк им. Островского, Соломенский лесопарк, Кадетская роща, Протасов Яр
Loading map...
Авторський канал ріелтора в Іспанії
Знайомтесь з Бенідормом, нерухомістю та стилем життя. Новобудови регіону, аналітика, інвестиції
Подробнее
+34624407828xxxx
РИЕЛ

РИЕЛ

93 дома строят в 14 ЖК
46 готовых домов в 25 ЖК с 2013 года
Киевгорстрой

Киевгорстрой

61 дом строят в 21 ЖК
167 готовых домов в 76 ЖК с 2010 года
Blago

Blago

60 домов строят в 15 ЖК
24 готовых дома в 5 ЖК с 2013 года
Трест Жилстрой-1

Трест Жилстрой-1

59 домов строят в 11 ЖК
181 готовый дом в 36 ЖК с 2012 года
Comfort Life

Comfort Life

54 дома строят в 9 ЖК
50 готовых домов в 10 ЖК с 2012 года