Подать объявление
К сожалению все квартиры c данной планировкой проданы
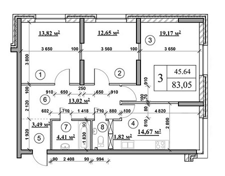
3-комнатная 83.05 м² в ЖК на ул. Соломенская, 20А от застройщика, Киев

Трехкомнатная планировка квартиры 83.05 м² в ЖК на ул. Соломенская, 20А, Киев

Общая площадь83.05 м²
Этажи12 / 25
Жилая площадь45.64 м²
Площадь кухни14.67 м²
от застройщика
+380 (44) 299 52 52Позвонить
Заметили неточность? Сообщите нам
Контакт-ИнвестКонтакт-Инвест
Застройщик
Контакт-Инвест
+380 (44) 299 52 52Позвонить

Расположение

Адресул. Соломенская, 20А
Ближайшие ориентирыСоломенский лесопарк, Парк им. Островского, Протасов Яр
Loading map...
Авторський канал ріелтора в Іспанії
Знайомтесь з Бенідормом, нерухомістю та стилем життя. Новобудови регіону, аналітика, інвестиції
Подробнее
+34624407828xxxx
РИЕЛ

РИЕЛ

93 дома строят в 14 ЖК
46 готовых домов в 25 ЖК с 2013 года
Киевгорстрой

Киевгорстрой

61 дом строят в 21 ЖК
167 готовых домов в 76 ЖК с 2010 года
Blago

Blago

60 домов строят в 15 ЖК
24 готовых дома в 5 ЖК с 2013 года
Трест Жилстрой-1

Трест Жилстрой-1

59 домов строят в 11 ЖК
181 готовый дом в 36 ЖК с 2012 года
Comfort Life

Comfort Life

54 дома строят в 9 ЖК
50 готовых домов в 10 ЖК с 2012 года