К сожалению все квартиры c данной планировкой проданы
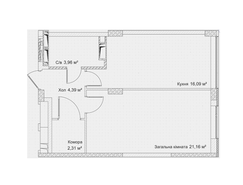
Однокомнатная планировка квартиры 48.7 м² в ЖК Синергия 3, г. Ирпень
Общая площадь48.7 м²
Этажи10 / 18
Жилая площадь21.16 м²
Площадь кухни16.09 м²
925 тыс Грн
/ 19 000 грн/м²
Другие 1-комнатные планировки, ЖК Синергия 3
Заметили неточность? Сообщите нам
Расположение
Адресул. Григория Сковороды, 11
Loading map...

Авторський канал ріелтора в Іспанії
Знайомтесь з Бенідормом, нерухомістю та стилем життя. Новобудови регіону, аналітика, інвестиції
Подробнее
- Новостройки в Украине
- Киевская обл.
- Бучанский район
- г. Ирпень
- ЖК Синергия 3
- 1-комнатная планировка 48.7 м²