Подать объявление

Продажа 2-комнатной квартиры 77.22 м², Михаила Максимовича ул., 32

$⁠106 905 / $⁠1 384 за м²
Смотреть все объекты
На домике с 2011 года
+380 (50) 539 46 21Позвонить
Создано 02 февраля, обновлено 17 марта
Код объявления 22427901
Продажа 2-комнатной квартиры 77.22 м², Михаила Максимовича ул., 32
Продажа 2-комнатной квартиры 77.22 м², Михаила Максимовича ул., 32
Продажа 2-комнатной квартиры 77.22 м², Михаила Максимовича ул., 32

Продажа квартиры

Тип2-комнатная
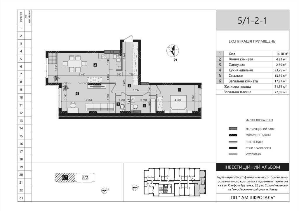
Общая площадь77.22 м²
Площадь кухни23.8 м²
Жилая площадь32 м²
Этаж22
Этажей в доме23
Материал стенМонолитный железобетон
Высота потолков2.54 м
ОтделкаБез отделки
ДополнительноЛифт в паркинг

Описание

Без комісії. Продаж 2-к у ЖК LikoGrad Perfect Town! Площа - 77,22 м Будинок побудовано, ідуть внутрішні інженерні роботи, монтаж ліфтів Введення в експлуатацію - літо 2026р. Детальна інформація у відділі продажу. Вул. Максимовича 32А. Є 100% оплата та кредитування під 3-7% від банку Вартість оформлення рахується в залежності від оплати Тел 050 539 46 21

Есть информация, о который вы хотите сообщить?

Расположение

АдресКиев, Михаила Максимовича ул., 32
Ближайшие станции метроВыставочный центр, Ипподром
Ближайшие ориентиры:Национальный комплекс "Экспоцентр Украины" (ВДНХ)
Відділ продажу Ліко-Нерухомість
Риэлтор
+380 (50) 539 46 21Позвонить
Смотреть все объекты
На домике с 2011 года

Написать владельцу

Відділ продажу Ліко-Нерухомість

Продажа квартир рядом

Киев, Михаила Максимовича ул., 32Г
Киев, Михаила Максимовича ул., 32Г
$⁠94 307 / $⁠1 384 за м²
2-комнатная, 68.12 м²
1 неделю назад
Киев, Василия Симоненко ул., 5А
Киев, Василия Симоненко ул., 5А
$⁠135 000 / $⁠2 500 за м²
2-комнатная, 54 м²
1 месяц назад
ул. Михаила Максимовича (Трутенко), 24
ул. Михаила Максимовича (Трутенко), 24
$⁠89 063 / $⁠1 484 за м²
2-комнатная, 60 м²
3 года назад
Киев, Михаила Максимовича ул., 24
Киев, Михаила Максимовича ул., 24
$⁠160 000 / $⁠2 623 за м²
2-комнатная, 61 м²
сегодня, 14:22
Авторський канал ріелтора в Іспанії
Знайомтесь з Бенідормом, нерухомістю та стилем життя. Новобудови регіону, аналітика, інвестиції
Подробнее
+34624407828xxxx