Подать объявление

Продажа 2-комнатной квартиры 68.12 м², Михаила Максимовича ул., 32Г

$⁠94 307 / $⁠1 384 за м²
Смотреть все объекты
На домике с 2011 года
+380 (50) 539 46 21Позвонить
Создано 02 февраля, обновлено 02 февраля
Код объявления 22427903
Продажа 2-комнатной квартиры 68.12 м², Михаила Максимовича ул., 32Г
Продажа 2-комнатной квартиры 68.12 м², Михаила Максимовича ул., 32Г
Продажа 2-комнатной квартиры 68.12 м², Михаила Максимовича ул., 32Г
Продажа 2-комнатной квартиры 68.12 м², Михаила Максимовича ул., 32Г

Продажа квартиры

Тип2-комнатная
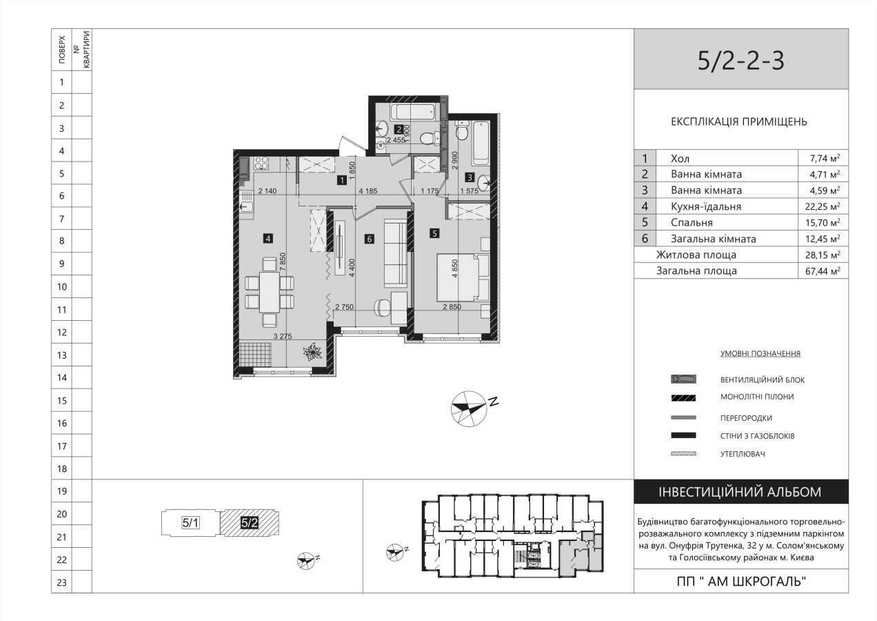
Общая площадь68.12 м²
Площадь кухни22.25 м²
Жилая площадь28.83 м²
Этаж16
Этажей в доме23
Материал стенМонолитный железобетон
Высота потолков2.54 м
ОтделкаБез отделки
ДополнительноЛифт в паркинг

Описание

Без комісії! Продаж 2-к квартири у ЖК "Ліко-Град Perfect Town"! Квартира в будинку на етапі будівництва. Будинок побудовано, ідуть внутрішні інженерні роботи Запланований термін введення в експлуатацію - 2 квартал 2026 року. Загальна площа - 67, 44 кв.м. Комфортне планування, яке заслуговує вашої уваги! Є 100% оплата та кредитування під 3-7% від банку Вартість оформлення рахується в залежності від оплати Тел 050 539 46 21

Есть информация, о который вы хотите сообщить?

Расположение

АдресКиев, Михаила Максимовича ул., 32Г
Ближайшие станции метроВыставочный центр, Ипподром
Ближайшие ориентиры:Национальный комплекс "Экспоцентр Украины" (ВДНХ)
Відділ продажу Ліко-Нерухомість
Риэлтор
+380 (50) 539 46 21Позвонить
Смотреть все объекты
На домике с 2011 года

Написать владельцу

Відділ продажу Ліко-Нерухомість

Продажа квартир рядом

Киев, Михаила Максимовича ул., 32
Киев, Михаила Максимовича ул., 32
$⁠106 905 / $⁠1 384 за м²
2-комнатная, 77.22 м²
5 дней назад
Киев, Василия Симоненко ул., 5А
Киев, Василия Симоненко ул., 5А
$⁠135 000 / $⁠2 500 за м²
2-комнатная, 54 м²
3 недели назад
ул. Михаила Максимовича (Трутенко), 24
ул. Михаила Максимовича (Трутенко), 24
$⁠89 063 / $⁠1 484 за м²
2-комнатная, 60 м²
3 года назад
Киев, Михаила Максимовича ул., 24
Киев, Михаила Максимовича ул., 24
$⁠89 000 / $⁠1 459 за м²
2-комнатная, 61 м²
вчера
Авторський канал ріелтора в Іспанії
Знайомтесь з Бенідормом, нерухомістю та стилем життя. Новобудови регіону, аналітика, інвестиції
Подробнее
+34624407828xxxx