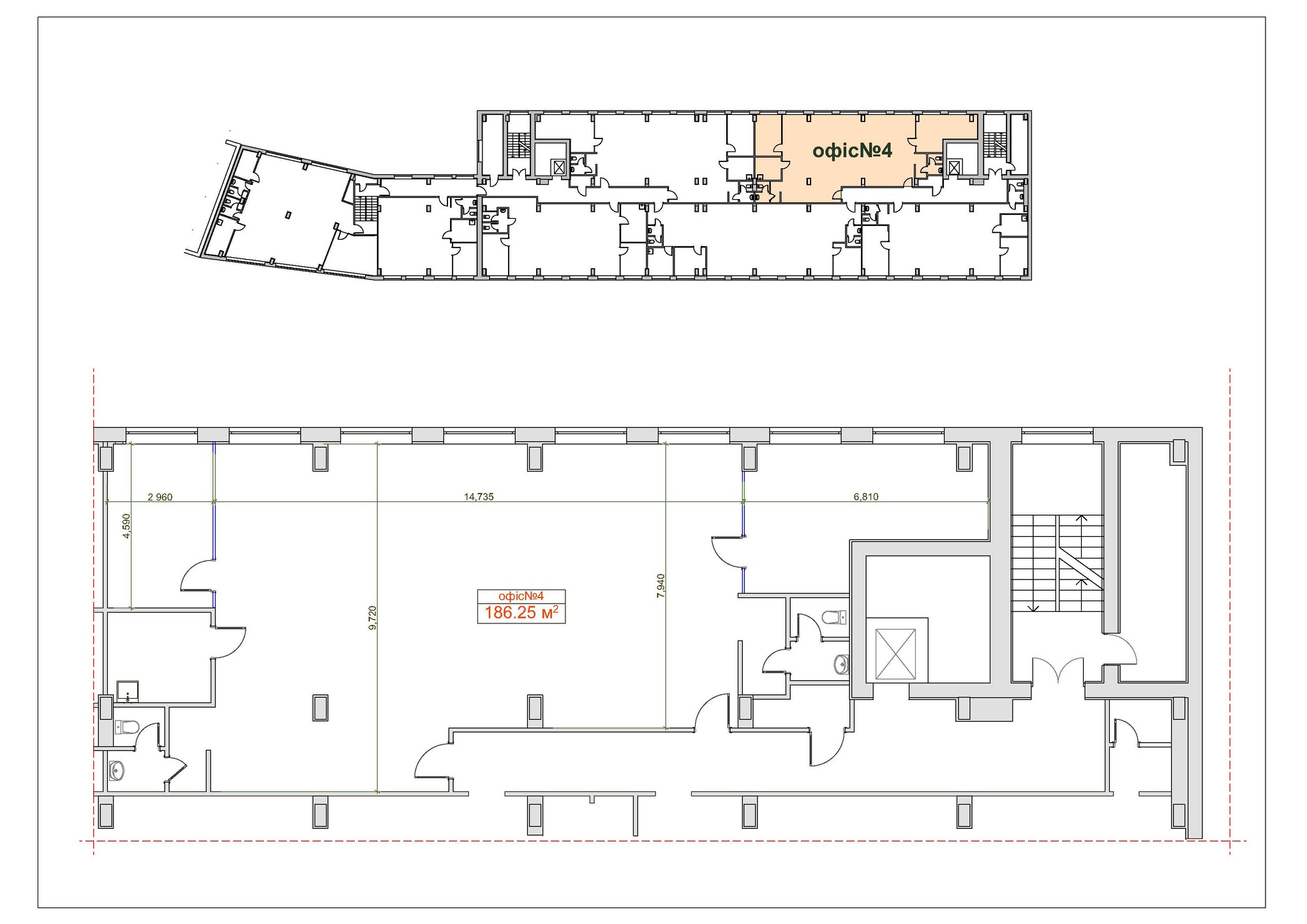
Аренда офиса 186 м², Глубочицкая ул., 17А
Создано 14 декабря 2018, обновлено 20 октября
Код объявления 10998249
- Стоит ли сейчас покупать недвижимость?10.104 714
- Чи варто купити будинок в спокійному регіоні, в Вінниці?17.092
- Завышеные тарифы на отопление. Как обжаловать и куда писать?19.082
- Ипотека от Банков с лучшими условиями | Обсуждение кредитов под залог недвижимости13.08192
- Краудфандинг - типы группового инвестирования01.083
Аренда офиса
Линия домов | Первая | |
Вход | Общий со двора | |
Этаж | 4 | |
Общая площадь | 186 м² | |
Отделка | Типовой ремонт | |
Наличие мебели | Без мебели | |
Инфраструктура | Аптека, Минимаркет, Кафе, Банкомат, Отделение банка, Столовая, Буфет | |
Материал стен | Другие | |
Дни работы | Ежедневно | |
Год постройки дома | 2022 | |
Этажей в доме | 7 | |
Высота потолков | 4 м | |
Тип дома | Бизнес-центр | |
Срок аренды | Длительный | |
Тип аренды | Прямая аренда |
Описание
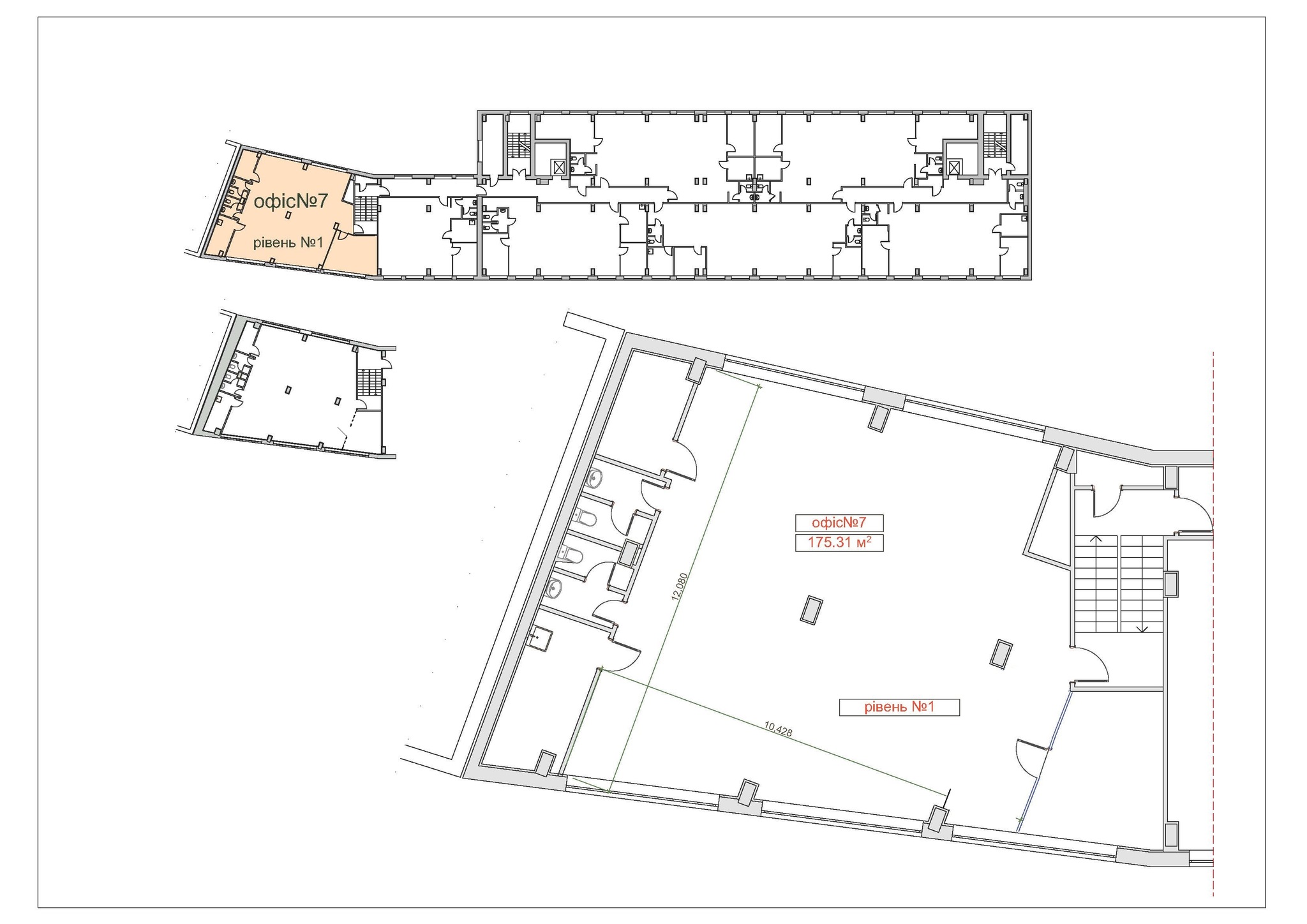
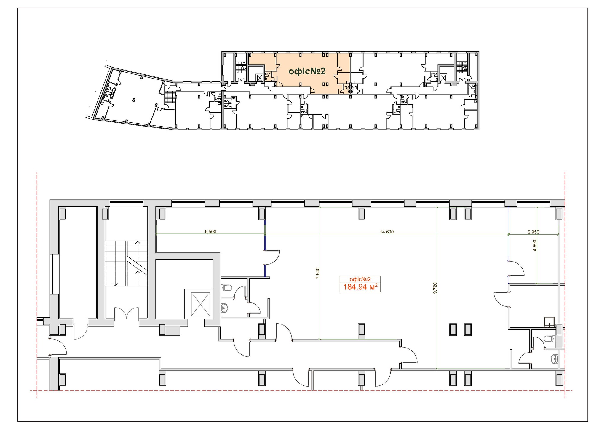
Оренда офісних приміщінь в Бізнес-центрі на вул. Глибочицька 17. Четвертий поверх, ліфт. Площа - 175 м2. (опенспейс, кабінет, кухня, санвузол - 52500 гр/міс).; 186 м2 і 185 м2 (опенспейс, 2 кабінети, кухня, санвузол - 56000 гр/міс). Можлимо разом 370 м2. Всі комунікації, охорона, парковка, зупинка транспорту, метро "Лукьянівська" - 10 хвилин пішки. Вартість - 300 гр/м2. Додатково комунальні платежі.
Есть информация, о который вы хотите сообщить?
Расположение
АдресКиев, Глубочицкая ул., 17А
Ближайшие станции метроЛукьяновская, Тараса Шевченко
Ближайшие ориентиры:Сквер Гейдара Алиева, Сквер им. Космодемьянской, Сквер им. Чкалова, Кирилловский гай
Loading map...
Написать владельцу


Купуй квартиру на Domik.ua
Широкий вибір квартир від власників, забудовників та ріелторів
Подробнее