Оренда офісу 186 м², Глибочицька вул., 17а
Створено 14 грудня 2018, оновлено 20 жовтня
Код оголошення 10998249
- Чи варто зараз купувати нерухомість?10.104 714
- Чи варто купити будинок в спокійному регіоні, в Вінниці?17.092
- Завышеные тарифы на отопление. Как обжаловать и куда писать?19.082
- Іпотека від Банків із найкращими умовами | Обговорення кредитів під заставу нерухомості13.08192
- Краудфандинг - типы группового инвестирования01.083
Оренда офісу
Лінія будівель | Перша | |
Вхід | Загальний з двору | |
Поверх | 4 | |
Загальна площа | 186 м² | |
Оздоблення | Типовий ремонт | |
Наявність меблів | Без меблів | |
Інфраструктура | аптека, мінімаркет, кафе, банкомат, відділення банку, їдальня, буфет | |
Матеріал стін | Інші | |
Дні роботи | Щодня | |
Рік побудови будинку | 2022 | |
Поверхів в будинку | 7 | |
Висота стель | 4 м | |
Тип будівлі | Бізнес-центр | |
Термін оренди | Тривалий | |
Тип оренди | Пряма оренда |
Інформація
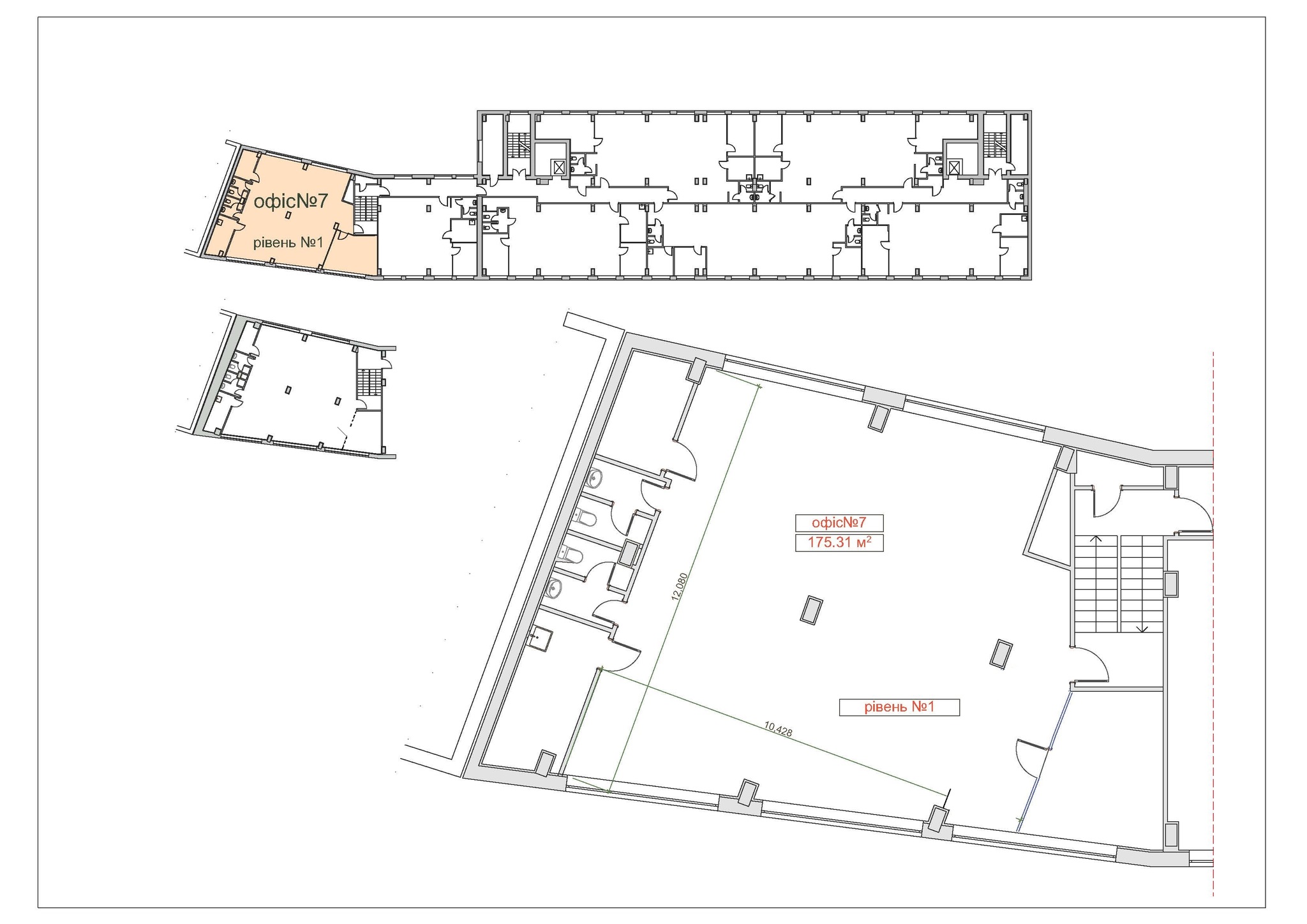
Оренда офісних приміщінь в Бізнес-центрі на вул. Глибочицька 17. Четвертий поверх, ліфт. Площа - 175 м2. (опенспейс, кабінет, кухня, санвузол - 52500 гр/міс).; 186 м2 і 185 м2 (опенспейс, 2 кабінети, кухня, санвузол - 56000 гр/міс). Можлимо разом 370 м2. Всі комунікації, охорона, парковка, зупинка транспорту, метро "Лукьянівська" - 10 хвилин пішки. Вартість - 300 гр/м2. Додатково комунальні платежі.
Є інформація, яку ви хочете повідомити?
Розташування
АдресаКиїв, Глибочицька вул., 17а
Найближчі станції метроЛук'янівська, Тараса Шевченка
Найближчі орієнтири:Сквер Гейдара Алієва, Сквер ім. Космодем'янської, Сквер ім. Чкалова, Кирилівський гай
Loading map...
Написати власнику


Купуй квартиру на Domik.ua
Широкий вибір квартир від власників, забудовників та ріелторів
Детальніше