Продаж 3-кімнатної квартири 137 м², ЖК Трояндовий, Будинок 1
Створено 21 жовтня 2020, оновлено 21 березня 2023
Код оголошення 20473405
- Чи варто зараз купувати нерухомість?30.094 706
- Чи варто купити будинок в спокійному регіоні, в Вінниці?17.092
- Завышеные тарифы на отопление. Как обжаловать и куда писать?19.082
- Іпотека від Банків із найкращими умовами | Обговорення кредитів під заставу нерухомості13.08192
- Краудфандинг - типы группового инвестирования01.083
Продаж квартири в новобудові
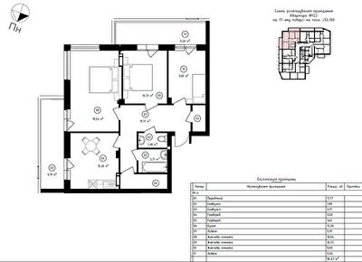
Тип | 3-кімнатна | |
Загальна площа | 137 м² | |
Площа кухні | 20.4 м² | |
Житлова площа | 71 м² | |
Поверхів в будинку | 3 | |
Висота стель | 2.8 м | |
Рік побудови будинку | 2023 | |
Квартал | II квартал | |
Поверх | 1-3 | |
Тераса | Так | |
Особисте підвір'я | Так |
Є інформація, яку ви хочете повідомити?
Розташування
АдресаКиївська обл., Броварський район, м. Бровари, ЖК Трояндовий, Будинок 1
Loading map...
Написати власнику


Авторський канал ріелтора в Іспанії
Знайомтесь з Бенідормом, нерухомістю та стилем життя. Новобудови регіону, аналітика, інвестиції
Детальніше