Продаж офісу 90.6 м², Ювілейний просп., 54
Створено 13 жовтня, оновлено вчора, 02:30
Код оголошення 22407880
- Чи варто зараз купувати нерухомість?10.104 714
- Чи варто купити будинок в спокійному регіоні, в Вінниці?17.092
- Завышеные тарифы на отопление. Как обжаловать и куда писать?19.082
- Іпотека від Банків із найкращими умовами | Обговорення кредитів під заставу нерухомості13.08192
- Краудфандинг - типы группового инвестирования01.083
Продаж офісу
Лінія будівель | Перша | |
Поверх | 1 | |
Загальна площа | 90.6 м² | |
Оздоблення | Типовий ремонт | |
Наявність меблів | Без меблів | |
Опалення | Централізоване | |
Рік побудови будинку | 1975 | |
Поверхів в будинку | 2 | |
Висота стель | 3.5 м | |
Тип будівлі | Торгово-офісний комплекс |
Інформація
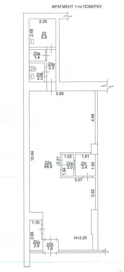
продаж нежитлового приміщення: м.Харків, пр.Ювілейний, 54. Приміщення розташоване в будівлі кінотеатру Кіноленд (к/т не працює). Загальна площа 90,6 кв.м. (1-й поверх). Приміщення має один окремий вхід (з пр.Ювілейний). Приміщення обладнане системою відеоспостереження, пожежно-тривожною сигналізацією. Планування приміщення дозволяє використовувати його в якості офісних або торгівельних приміщень. Електропотужність 10 кВт. Опалення централізоване, є теплова рамка та окремий лічильник на всю будівлю кінотеатру. Всі комунікації залежать від кінотеатру. Від початку воєнного стану в Україні кінотеатр припинив оплату за опалення, водопостачання, е/е. Власник - юр.особа. Вартість із ПДВ.
Є інформація, яку ви хочете повідомити?
Розташування
АдресаХарків, Ювілейний просп., 54
Найближчі станції метроАкадеміка Павлова
Найближчі орієнтири:Парк Перемоги
Loading map...
Написати власнику


Купуй квартиру на Domik.ua
Широкий вибір квартир від власників, забудовників та ріелторів
Детальніше