Продаж будинку 312 м², Плодова вул.
- Чи варто зараз купувати нерухомість?30.094 706
- Чи варто купити будинок в спокійному регіоні, в Вінниці?17.092
- Завышеные тарифы на отопление. Как обжаловать и куда писать?19.082
- Іпотека від Банків із найкращими умовами | Обговорення кредитів під заставу нерухомості13.08192
- Краудфандинг - типы группового инвестирования01.083
Продаж будинку
Тип | Будинок | |
Загальна площа | 312 м² | |
Кількість спалень | 5 | |
Кількість санвузлів | 3 | |
Площа ділянки | 4 Соток | |
Поверхів в будинку | 2 | |
Висота стель | 2.7 м | |
Матеріал стін | Керамічний пустотіла цегла | |
Площа кухні | 30 м² | |
Житлова площа | 124 м² | |
Ділянка кутова | Ні | |
Додатково | Бойлер, Ванна, Душова кабіна, Тераса, Гараж | |
Опалення | Тверде топливо |
Інформація
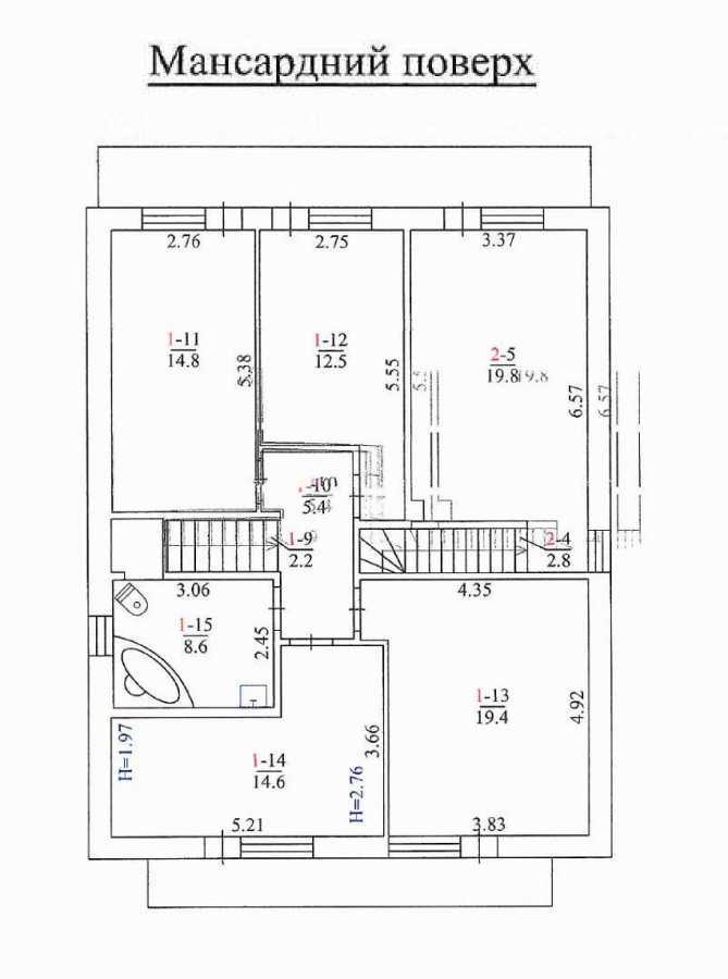
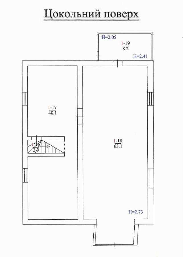
Святошино, Садівниче товариство Авіатор біля Великої Окружної дороги в районі ТЦ Лавіна. Якісний 3-поверховий будинок 312 кв.м. з червоної цегли. Ідеальний будинок для проживання 2-ох сімей, оскільки розділений на 2 частини. 1-а частина складається з кухні, 2 сан.вузлів, 4-ох спалень з двома балконами. 2-а частина складається з кухні, сан.вузла, спальні з балконом. Загальна площа 312 кв.м., житлова 124 кв.м., площа кухонь 15+15 кв.м. Опалюваний підвал (сховище) 40 кв.м. У будинку великий гараж-майстерня 63 кв.м., тераса. Будинок повністю укомплектований меблями. Твердопаливний котел, скважина, септик. Ділянка 0,04 Га, на ділянці є міні-огород (квітник). Має чудове місцерозташування в межах міста, в кількох хвилинах на авто від станції метро Академмістечко та ТЦ Лавіна Молл. Приходьте на перегляд та переконайтеся, наскільки привабливим є великий будинок у Києві для зручного проживання двох поколінь сім’ї, за ціною трикімнатної квартири! Ціна 175000$. Терміново. Без комісійних, представник продавця. (067)500-09-29 Роман
Написати власнику

Продаж будинків поруч
