Продаж іншого торгівельного приміщення 100 м², Михайла Максимовича вул., 28г
- Чи варто зараз купувати нерухомість?07.104 709
- Чи варто купити будинок в спокійному регіоні, в Вінниці?17.092
- Завышеные тарифы на отопление. Как обжаловать и куда писать?19.082
- Іпотека від Банків із найкращими умовами | Обговорення кредитів під заставу нерухомості13.08192
- Краудфандинг - типы группового инвестирования01.083
Продаж торговельного приміщення
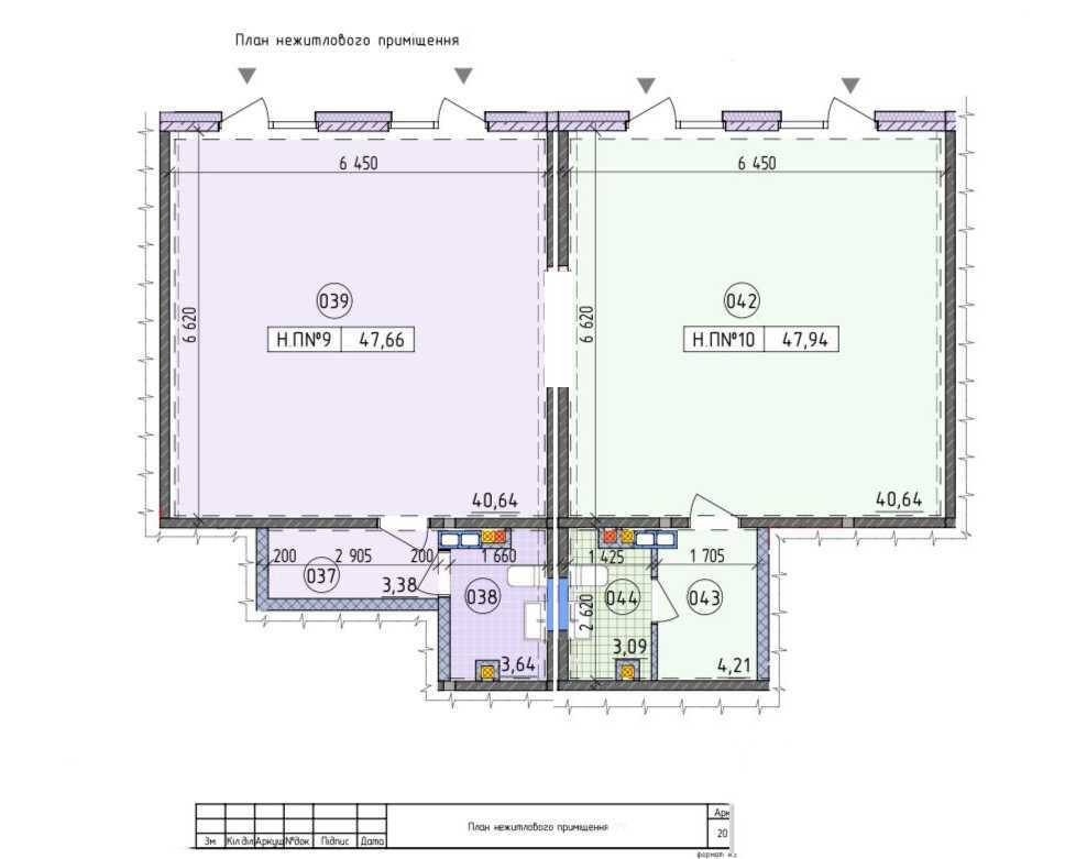
Тип | Інше торгівельне | |
Лінія будівель | Перша | |
Поверх | 1 | |
Загальна площа | 100 м² | |
Оздоблення | Під чистове оздоблення | |
Наявність обладнання | З обладнанням | |
Тип приміщення | У торговому комплексі | |
Опалення | Централізоване, Автономна котельня | |
Рік побудови будинку | 2021 | |
Поверхів в будинку | 21 | |
Висота стель | 3.5 м | |
Тип будівлі | Інше призначення |
Інформація
БЕЗ КОМІССІЇ! Найнижча ціна в комплексі на перший поверх!!! Для тих хто розуміється на Топових локаціях !!! -Фасадне приміщення 100 кв.м, нежитловий фонд, 2 окремих входа, місце під велику вивіску, високі стелі Н=3,5 метра. Приміщення можна інтерпритувати як 100 кв.м, так і 2 окремих по 50 кв.м. Лічильники на воду електро, опалення (автономна котельня в комплексі). Літня тераса, перед приміщенням можна ставити столики. Приміщення розташоване в будинку "ЛІНКОЛЬН" на 300 квартир. Для гостей та клієнтів безперешкодний доступ на територію, в телеграм каналі онлайн робиться заявка, отримується номер для гостя. -ЖК "Нова Англія надзвичайне місто в місті, 14-будинків - це 4600 квартир, підземний та наземний паркінг на 3000 авто, велика школа, дитячий садок, якісні дитячі майданчики, дитячі гуртки, спортивний майданчик, тенісний корт, качалка, міні-футбол, барбекю, салони, клініки, сімейний врач, майданчик для собак, кафе, ресторан, маркети. Метро "Васильківська" 10-15 хвилин пішки. -Агентство нерухомості у "Новій Англії" знаходимось в будинку "БРАЙТОН"
Розташування
Написати власнику

Продаж торговельних приміщень поруч
