Продаж 2-кімнатної квартири 87.5 м², Багговутівська вул., 25
- Чи варто зараз купувати нерухомість?08.104 711
- Чи варто купити будинок в спокійному регіоні, в Вінниці?17.092
- Завышеные тарифы на отопление. Как обжаловать и куда писать?19.082
- Іпотека від Банків із найкращими умовами | Обговорення кредитів під заставу нерухомості13.08192
- Краудфандинг - типы группового инвестирования01.083
Продаж квартири
Тип | 2-кімнатна | |
Загальна площа | 87.5 м² | |
Площа кухні | 18.4 м² | |
Житлова площа | 43 м² | |
Поверх | 21 | |
Поверхів в будинку | 24 | |
Матеріал стін | Керамічний пустотіла цегла | |
Висота стель | 2.7 м | |
Оздоблення | Без оздоблення | |
Додатково | Ліфт в паркінг | |
Рік побудови будинку | 2021 |
Інформація
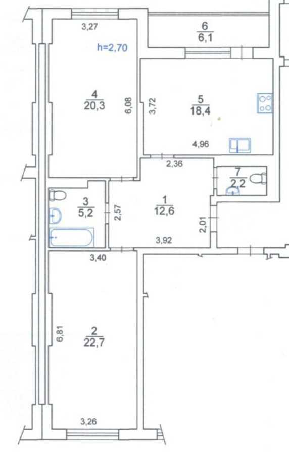
Пропонуємо Вашій увазі двокімнатну квартиру у ЖК Багговутівський. Татарка історична місцевість столиці, яка розташована у Шевченківському районі вул. Загорівська,25 Сучасний будинок класу Комфорт. Монолітно-каркасний. Стіни - цегла. Двадцять чотири поверха Атрибути бізнес-класу у будинку: Власна котельня. В квартирі встановлені та підключені радіатори. Лічильник на тепло (лічильники на воду та електрику зрозуміло також). Підземний паркінг. Сучасні швидкісні ліфти. Спускаются прямо у паркінг. Чипований доступ до підїзду, до ліфту, та до паркінгу. Вхідні двері у квартиру протиударні та вогнетривкі, оскільки виконані з якісного металу. Можна не міняти. Велика двокімнатна квартира. Після будівельників. У цієї двокімнатної квартирі сама велика загальна площа, відповідно і площа кухні, серед двокімнатних квартир у ЖК Багговутівський. 21 поверх. Загальна площа. 87,5 м2. Житлова 43 м2. Площа кухні 18,4 м2. Планування. Вікна виходять на дві протилежні сторони. Вікно однієї з двох житлових кімнат - панорамне. З кухні вихід на велику лоджію - 6,1 м2. Два санвузли. Зверніть увагу на розташування отворів міжкімнатних дверей. Вони дозволяють планувати цікаві рішення по меблюванню квартири. Панорама. Для тих хто цінує. З вікна можно побачити куполи Андріївської церкви на Андріївському узвозі На поверсі є єдина кладова. 3,6 м2 Вона у власности. Продаж розглянемо окремо. Потрібно паркомісце? Є у власності. Питання розглянемо окремо. . Інфраструктура. Поряд ТРЦ Променада, Сільпо, SportLife, мед. заклади, дитячі садки, школи та парки у пішій доступності. Відмінна транспортна розвязка, зупинки громадського транспорту. Квартира у власності. Документам більше 3 років. Держпрограми розглядаємо. Представник власника без комісії для покупця. Відео по запиту. Консультації. Перегляди. Дзвоніть.
Розташування
Написати власнику

Продаж квартир поруч
