Продаж 2-кімнатної квартири 57 м², Декабристів вул., 6Б
- Чи варто зараз купувати нерухомість?07.104 709
- Чи варто купити будинок в спокійному регіоні, в Вінниці?17.092
- Завышеные тарифы на отопление. Как обжаловать и куда писать?19.082
- Іпотека від Банків із найкращими умовами | Обговорення кредитів під заставу нерухомості13.08192
- Краудфандинг - типы группового инвестирования01.083
Продаж квартири
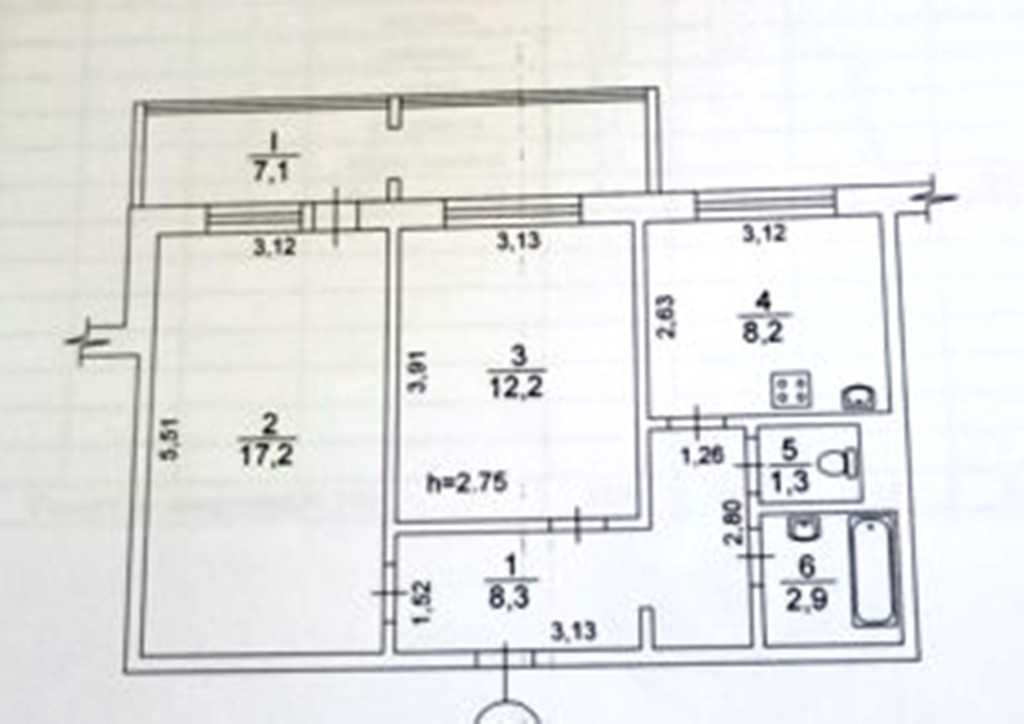
Тип | 2-кімнатна | |
Загальна площа | 57 м² | |
Площа кухні | 8 м² | |
Житлова площа | 29 м² | |
Поверх | 11 | |
Поверхів в будинку | 16 | |
Матеріал стін | Монолітний залізобетон | |
Висота стель | 2.65 м | |
Оздоблення | Ремонт 2000-х | |
Опалення | Централізоване |
Інформація
Тепло сімейного затишку на Дніпровських пагорбах 2-кімнатна квартира чекає на нових господарів! вул. Братства Тарасівців, 6б Уявіть ранок у квартирі, де сонце заглядає у вікна, де запах кави долітає з окремої кухні, а діти збираються до школи, яка зовсім поруч. Це житло для тих, хто шукає простір, світло і комфорт у зручній локації. Що ви отримаєте: 2 кімнати, що дозволять кожному мати свій простір окрема кухня для сімейних сніданків засклений балкон для вечірніх роздумів роздільний санвузол металопластикові вікна, водонагрівач жилий стан, можна заїхати одразу або оновити під себе Ідеальне місце для життя: Усе поруч школи, садочки, магазини, кавярні, банки, зупинки транспорту і навіть сквер для прогулянок. Послуги агентства сплачує власник без додаткових витрат для покупця! Запрошуємо на перегляд! Покази коли вам зручно.
Розташування
Київ, Декабристів вул., 6Б
Написати власнику

Продаж квартир поруч
