Продаж 2-кімнатної квартири 45.6 м², Литвиненко-Вольгемут вул., 1Б
- Чи варто зараз купувати нерухомість?10.104 714
- Чи варто купити будинок в спокійному регіоні, в Вінниці?17.092
- Завышеные тарифы на отопление. Как обжаловать и куда писать?19.082
- Іпотека від Банків із найкращими умовами | Обговорення кредитів під заставу нерухомості13.08192
- Краудфандинг - типы группового инвестирования01.083
Продаж квартири
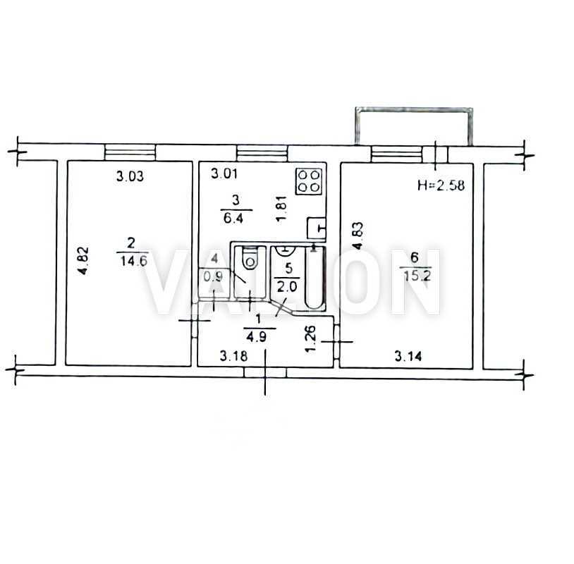
Тип | 2-кімнатна | |
Загальна площа | 45.6 м² | |
Площа кухні | 6.4 м² | |
Житлова площа | 29 м² | |
Поверх | 2 | |
Поверхів в будинку | 5 | |
Матеріал стін | Керамічний пустотіла цегла | |
Висота стель | 2.6 м | |
Оздоблення | Ремонт 2010-их | |
Додатково | Ванна | |
Опалення | Централізоване | |
Рік побудови будинку | 1978 |
Інформація
БЕЗ% Пропонується до продажу чудова двокімнатна квартира на вулиці Литвиненко-Вольгемут, 1б. Це ідеальне місце для тих, хто цінує тишу, комфорт і зручність. Цегляний будинок 1970 року. Газифікований. Квартира загальною площею 45,6 кв.м має продумане планування. Дві окремі просторі світлі кімнати 15,2 і 14,6 кв.м з вікнами у затишний двір тиша, спокій і багато природного світла. У квартирі зроблено легкий косметичний ремонт, дуже охайно й чисто. Все готове для життя. Залишається вбудована кухня та побутова техніка, що стане приємним бонусом для нових власників. У коридорі є вбудована шафа, яка зручно доповнює простір. Металеві вхідні двері з надійним засовом додають відчуття захищеності. Металопластикові вікна збережуть тепло взимку і прохолоду влітку. Балкон засклений дерев’яними рамами, є додаткова шафа для зберігання речей. У кімнатах справжній дерев’яний паркет у чудовому стані, який створює атмосферу домашнього затишку. Встановлені лічильники на воду та електроенергію. Локація справжня знахідка. У пішій доступності одразу кілька зелених зон: парк Юність, парк імені Генерала Потапова, парк Інтернаціональний та озеро Вера. Все необхідне поруч школи, дитячі садки, магазини, ринок Дніпро. Ця квартира місце, куди приємно повертатися. Тиха вулиця, доброзичливі сусіди та відчуття спокою щодня. Розглядаємо безготівковий розрахунок! Телефонуйте, щоб домовитись про перегляд можливо, саме тут починається ваша нова історія.
Розташування
Київ, Литвиненко-Вольгемут вул., 1Б
Написати власнику

