Продаж 1-кімнатної квартири 29 м², Михайла Максимовича вул., 28К
- Чи варто зараз купувати нерухомість?07.104 707
- Чи варто купити будинок в спокійному регіоні, в Вінниці?17.092
- Завышеные тарифы на отопление. Как обжаловать и куда писать?19.082
- Іпотека від Банків із найкращими умовами | Обговорення кредитів під заставу нерухомості13.08192
- Краудфандинг - типы группового инвестирования01.083
Продаж квартири
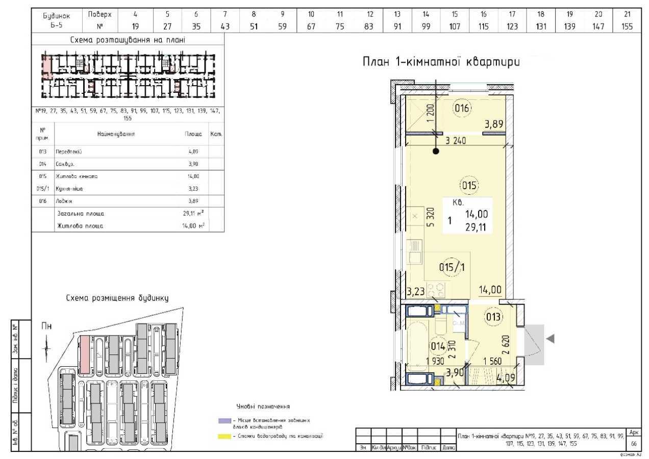
Тип | 1-кімнатна | |
Загальна площа | 29 м² | |
Площа кухні | 5 м² | |
Житлова площа | 15 м² | |
Поверх | 21 | |
Поверхів в будинку | 21 | |
Матеріал стін | Монолітний залізобетон | |
Висота стель | 2.7 м | |
Оздоблення | Без оздоблення | |
Додатково | Ліфт в паркінг | |
Рік побудови будинку | 2022 |
Інформація
БЕЗ додаткових платежів! Рідкісна (чотири вікна). Видова 1-кімнатна квартира 29 кв.м, можливість зробити окрему спальню та кухня. Видова, панорамні вікна, лічильники на опалення, воду та електроенергію. В комплексі власна котельня, в будинку три ліфта. По території відеонагляд, обслуговує охоронна компанія "SHERIF" ЖК "Нова Англія" це надзвичайне місто в місті, підземний та наземний паркінг, на території комплексу школа "Європейський колегіум", дитячий садок, якісні дитячі майданчики, дитячі гуртки, спортивний майданчик, тенісний корт, міні-футбол, салони краси, клініки, сімейний врач, майданчик для собак, кафе, ресторани, продуктові маркети. Метро "Васильківська" 10-15 хвилин пішки. Ключі в офісі, знаходимось в комплексі, ОПЕРАТИВНИЙ ПОКАЗ, відправляємо відео!
Розташування
Написати власнику

Продаж квартир поруч
