Продаж 1-кімнатної квартири 55 м², Сергія Данченка вул., 3
- Чи варто зараз купувати нерухомість?10.104 714
- Чи варто купити будинок в спокійному регіоні, в Вінниці?17.092
- Завышеные тарифы на отопление. Как обжаловать и куда писать?19.082
- Іпотека від Банків із найкращими умовами | Обговорення кредитів під заставу нерухомості13.08192
- Краудфандинг - типы группового инвестирования01.083
Продаж квартири
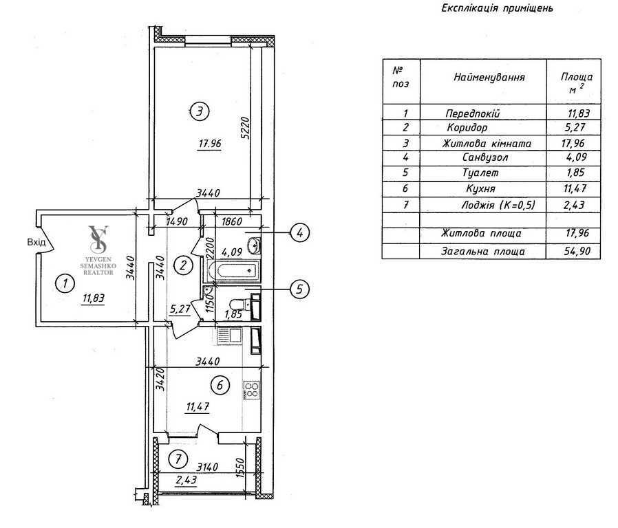
Тип | 1-кімнатна | |
Загальна площа | 55 м² | |
Площа кухні | 12 м² | |
Житлова площа | 18 м² | |
Поверх | 23 | |
Поверхів в будинку | 25 | |
Матеріал стін | Залізобетонна панель | |
Висота стель | 2.7 м | |
Оздоблення | Сучасний ремонт | |
Додатково | Бойлер, Кондиціонер(и), Ванна, Осмотичний фільтр для води | |
Опалення | Централізоване | |
Рік побудови будинку | 2017 |
Інформація
Продаж двосторонньої однокімнатної квартири, 55 кв.м. в ЖК Крістер Град, Сергія Данченка 3. Без комісії для покупця. Автор оголошення проти дублювання даного обєкту 23/25 поверхового будинку. Квартира продається зі всіма меблями та побутовою технікою. В інтерєрі використані елементи ручної роботи такі як люстра та бра в холі, світильник в санвузлі та карниз в кімнаті та на кухні. Ручки дверей в санвузлах з Італії та придбані в антикварній крамниці. В кімнаті площєю 18 кв.м. розташована вмістка шафа-купе, на стелі підвісна стеля з ефектом зоряного неба(виглядає дуже ефектно). Встановлені розсувні двері-книжка що є максимально ергономічним рішенням. Підлогова ваза з квіткою виготовлена в Італії. Вбудована кухня площєю 12 кв.м. з електричною плитою та духовою шафою, кондиціонером, мікрохвильовою піччю, холодильником, деревяним столом та стільцями, встановлена система зворотнього осмосу. В холі площєю 12 кв.м. розташовано: розкладний шкіряний диван-ліжко, журнальний стіл, пуф, шафа-купе. Санвузол роздільний, ванна виробництва Німеччині, встановлено бойлер на 50 літрів, гігієнічний душ, пральна машина та сантехніка вироблена в Італії, водяна рушникосушарка. В холі, коридорі, кухні та санвузлах на підлозі-плитка, в кімнаті-ламінат. Встановлено лічильники на воду, електроенергію та опалення. Три ліфти (два пасажирські та один вантажний). Є консьєрж. Своя керуюча компанія. Упорядкований озеленений двір із дитячими та спортивними майданчиками. За окрему доплату є можливість оренди паркомісця в закритому паркінгу. Поруч із будинком є супермаркети: Коло, Novus, АТБ, Сільпо, поліклініка, парк із озерами, а також ТРЦ Retroville. Гарна транспортна розвязка. Активно будується метро.
Розташування
Написати власнику

Продаж квартир поруч
