Продаж 3-кімнатної квартири 95 м², Валерія Лобановського просп., 15/7
- Чи варто зараз купувати нерухомість?08.104 711
- Чи варто купити будинок в спокійному регіоні, в Вінниці?17.092
- Завышеные тарифы на отопление. Как обжаловать и куда писать?19.082
- Іпотека від Банків із найкращими умовами | Обговорення кредитів під заставу нерухомості13.08192
- Краудфандинг - типы группового инвестирования01.083
Продаж квартири
Тип | 3-кімнатна | |
Загальна площа | 95 м² | |
Площа кухні | 30 м² | |
Поверх | 16 | |
Поверхів в будинку | 17 | |
Матеріал стін | Монолітний залізобетон | |
Висота стель | 2.7 м | |
Оздоблення | Чорнове оздоблення | |
Опалення | Централізоване |
Інформація
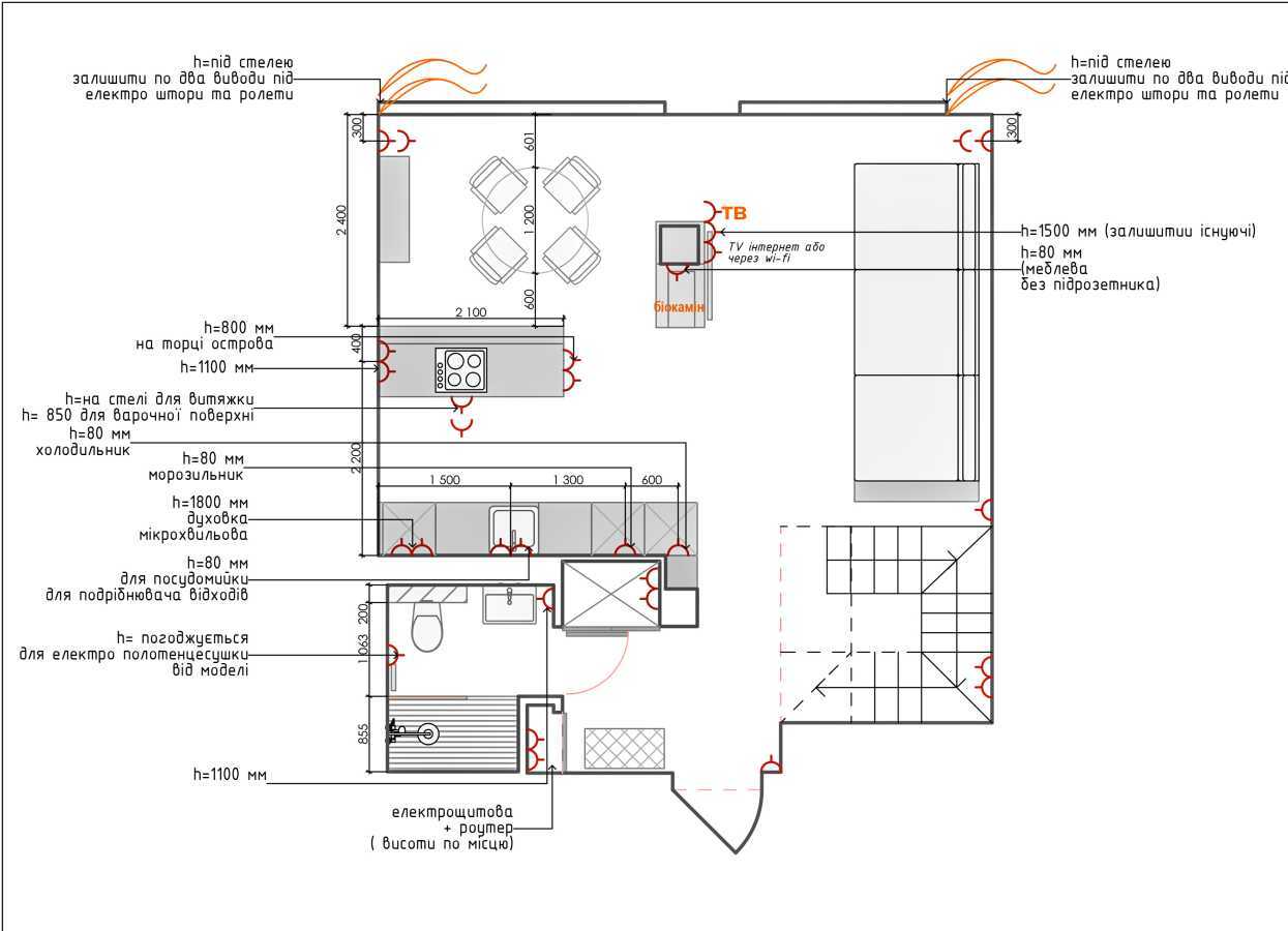
Продаж квартири з панорамним видом. Прос. Лобановського 15/7. 16п/17поверхового будинку 2016 року. Загальна площа - 95кв.м, в двох рівнях. Простора кухня-вітальня, 2 спальні, 2 санвузли, гардеробна кімната. Квартира повністю готова під чистове оздоблення (white box): вирівняні стіни, підлога та стеля, встановлені вікна, проведені електрика, сантехніка та тепла підлога, виконана стяжка. Готовий дизайнерський проект надається з покупкою квартири . Охайний підїзд, зручні ліфти, уважна консєржка, генератор для безперебійного опалення, роботи ліфтів та водопостачання. Закрита територія з цілодобовою охороною та відеонаглядом. Поруч розташовані Соломянський ландшафтний парк та Протасів Яр. В кроковій доступності все необхідне: лікарня, школа, дитячі садки, супермаркети "Новус" та "Ультрамарин", Соломянський ринок. До центру міста всього 7 хвилин на авто. Ціна 190000$
Розташування
Київ, Валерія Лобановського просп., 15/7
Написати власнику

Продаж квартир поруч
