Продаж 3-кімнатної квартири 96 м², Генерала Жмаченка вул., 26
Створено 18 вересня 2023, оновлено сьогодні, 13:46
Код оголошення 21233525
- Чи варто зараз купувати нерухомість?10.104 714
- Чи варто купити будинок в спокійному регіоні, в Вінниці?17.092
- Завышеные тарифы на отопление. Как обжаловать и куда писать?19.082
- Іпотека від Банків із найкращими умовами | Обговорення кредитів під заставу нерухомості13.08192
- Краудфандинг - типы группового инвестирования01.083
Продаж квартири
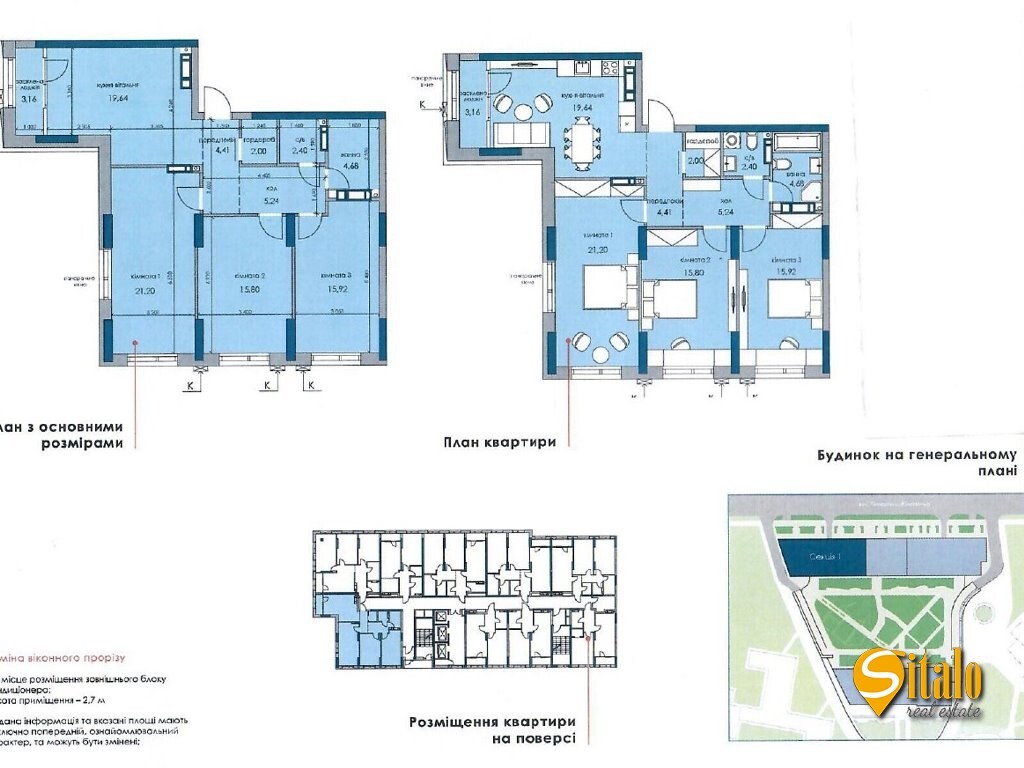
Тип | 3-кімнатна | |
Загальна площа | 96 м² | |
Поверх | 24 | |
Поверхів в будинку | 26 | |
Матеріал стін | Керамзитобетонна панель | |
Оздоблення | Без оздоблення |
Інформація
Предлагаю вашему вниманию 3 комнатную квартиру в ЖК Новый Автограф 1, по ул. Жмаченко генерала / Князя Романа Мстиславича в Днепровском районе. Квартира видовая, расположена на 24/26 этажного дома, общей площадью - 96м2, Жилищный комплекс комфорт-класса Дом сдается в октябре 2023 года В квартире 3 отдельные комнаты, кухня - гостиная, 2 санузла, лоджия. Отопление индивидуальное - электрический котел. Закрытая территория, видеонаблюдение, консьерж и круглосуточная охрана. Подземном паркинг, двор без машин. Отличная инфраструктура: парк "Победа" (детские площадки, спортивная площадка, озеро, аттракционы, веревочный парк и т.д. метро Дарница в пешей доступности. Квартира продается по переуступке. код объекта - 13711
Є інформація, яку ви хочете повідомити?
Розташування
АдресаКиїв, Генерала Жмаченка вул., 26
Найближчі станції метроДарниця
Найближчі орієнтири:Парк Перемоги, Лісопарк "Берізка", "Сад каміння" в Парку Перемоги, Парк Андрія Малишко, Парк "Попудренко"
Loading map...
Київ, Генерала Жмаченка вул., 26
Народний рейтинг будинку
Дарниця – 20 хв.
GPS-координати
50.468134338 30.612007289
Характеристики будинку
Матеріал стін
Керамзитобетонна панель
Поверхів в будинку
12
Написати власнику

Продаж квартир поруч

Купуй квартиру на Domik.ua
Широкий вибір квартир від власників, забудовників та ріелторів
Детальніше