Оренда офісу 146 м², Глибочицька вул., 17
Створено 23 серпня 2023, оновлено сьогодні, 14:45
Код оголошення 21221583
Оренда офісу
| Лінія будівель | Перша | |
| Вхід | Загальний з двору | |
| Поверх | 4 | |
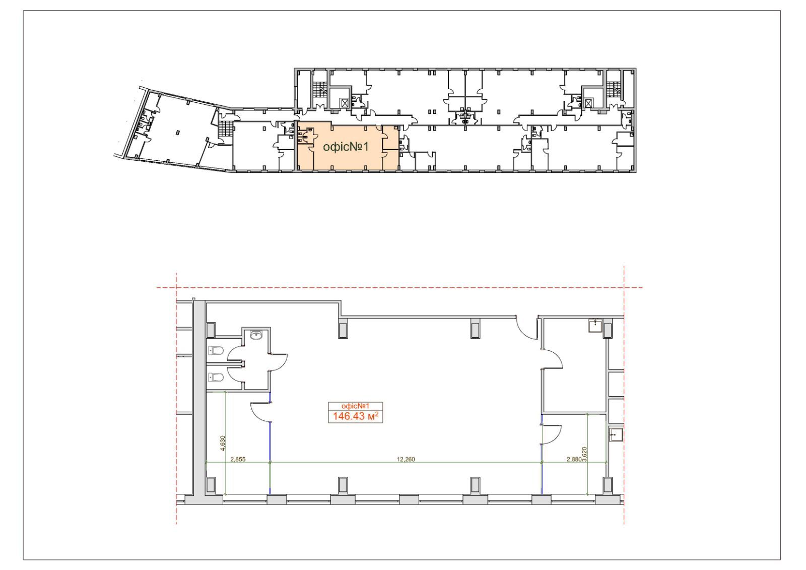
| Загальна площа | 146 м² | |
| Оздоблення | Типовий ремонт | |
| Наявність меблів | Без меблів | |
| Інфраструктура | аптека, салон краси, супермаркет, відділення банку, медичний центр, буфет, банкомат, кафе, мінімаркет, фітнес-центр | |
| Парковка | Наземна | |
| Поверхів в будинку | 7 | |
| Тип будівлі | Бізнес-центр | |
| Клас будівлі | B | |
| Термін оренди | Тривалий | |
| Передоплата, міс. | 2 | |
| В ставку включені | ПДВ | |
| Тип оренди | Пряма оренда |
Інформація
Аренда офиса в новом БЦ, улица Глубочицкая 17, офис 146 кв.м., (свободная планировка плюс переговорка, 2 санузла, кухня), выполнен офисный ремонт, первая сдача, все коммуникации, выбор интернета, круглосуточная охрана, видео наблюдение, круглосуточный доступ, лифт, наземная парковка. Метро "Лукьяновская" 10 минут. Цена 51000 гривен в месяц, включая НДС, плюс коммуналка согласно счетчикам. Также предлагаютя офисы в аренду 172 кв.м., 71 кв.м., 132 кв.м.
Є інформація, яку ви хочете повідомити?
Розташування
АдресаКиїв, Глибочицька вул., 17
Найближчі станції метроЛук'янівська, Тараса Шевченка
Найближчі орієнтири:Сквер Гейдара Алієва, Кирилівський гай, Сквер ім. Космодем'янської
Loading map...
Київ, Глибочицька вул., 17
Народний рейтинг будинку
Лук'янівська – 13 хв.
GPS-координати
50.463489545 30.489831714
Характеристики будинку
Матеріал стін
Інші
Поверхів в будинку
3
Написати власнику

Оренда офісів поруч
Авторський канал ріелтора в Іспанії
Знайомтесь з Бенідормом, нерухомістю та стилем життя. Новобудови регіону, аналітика, інвестиції
Детальніше