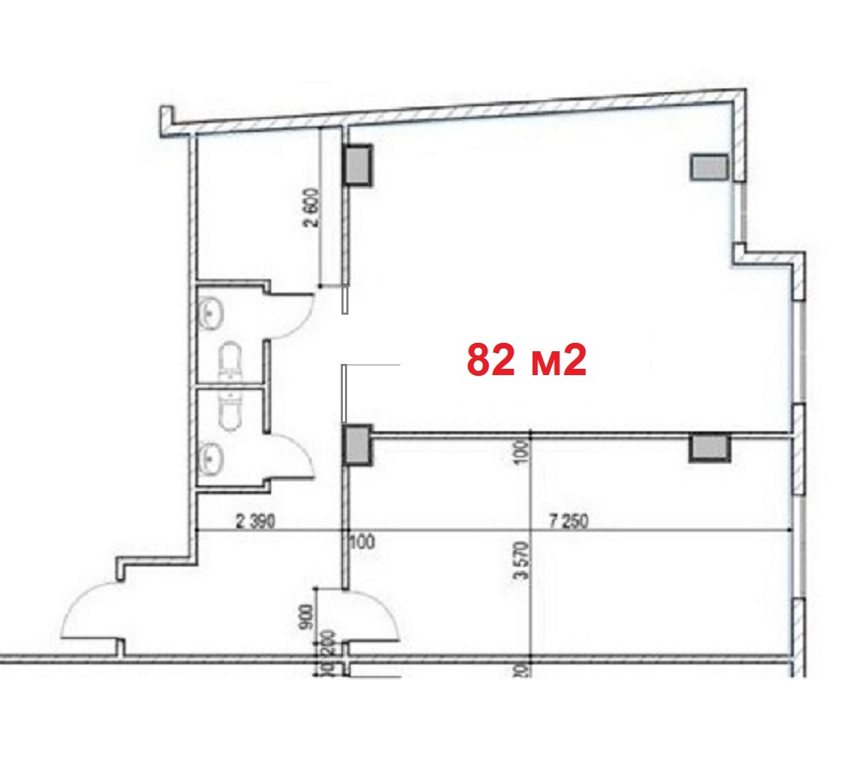
Оренда офісу 82 м², Глибочицька вул., 40
Створено 01 липня, оновлено 03 жовтня
Код оголошення 22386023
- Чи варто зараз купувати нерухомість?30.094 706
- Чи варто купити будинок в спокійному регіоні, в Вінниці?17.092
- Завышеные тарифы на отопление. Как обжаловать и куда писать?19.082
- Іпотека від Банків із найкращими умовами | Обговорення кредитів під заставу нерухомості13.08192
- Краудфандинг - типы группового инвестирования01.083
Оренда офісу
Лінія будівель | Друга | |
Вхід | Загальний з двору | |
Поверх | 4 | |
Загальна площа | 82 м² | |
Оздоблення | Типовий ремонт | |
Наявність меблів | Без меблів | |
Інфраструктура | автомийка, мінімаркет, ресторан, супермаркет, кафе | |
Парковка | Наземна | |
Дні роботи | Щодня | |
Поверхів в будинку | 6 | |
Висота стель | 3 м | |
Тип будівлі | Бізнес-центр | |
Термін оренди | Тривалий | |
В ставку включені | ПДВ | |
Тип оренди | Пряма оренда |
Інформація
Оренда офісного приміщення в Бізнес-центрі на вул. Глибочицька 40. Четвертий поверх, ліфт. Площа - 82 м2. Два кабінети, кухня, санвузол. Всі комунікації, охорона, парковка, зупинка транспорту, метро "Лукьянівська" - 15 хвилин пішки. Вартість - 27000 гр/міс з ПДВ. Додатково комунальні платежі.
Є інформація, яку ви хочете повідомити?
Розташування
АдресаКиїв, Глибочицька вул., 40
Найближчі станції метроТараса Шевченка, Лук'янівська, Контрактова площа
Найближчі орієнтири:Сквер Гейдара Алієва, Сквер ім. Чкалова, Сквер ім. Космодем'янської, Сквер Гончара, Ботанічний сад ім. Фоміна
Loading map...
Київ, Глибочицька вул., 40
Народний рейтинг будинку
Тараса Шевченка – 23 хв.
GPS-координати
50.461802566 30.496983069
Характеристики будинку
Матеріал стін
Керамічна цегла
Поверхів в будинку
7
Висота стель
3
Написати власнику


Купуй квартиру на Domik.ua
Широкий вибір квартир від власників, забудовників та ріелторів
Детальніше