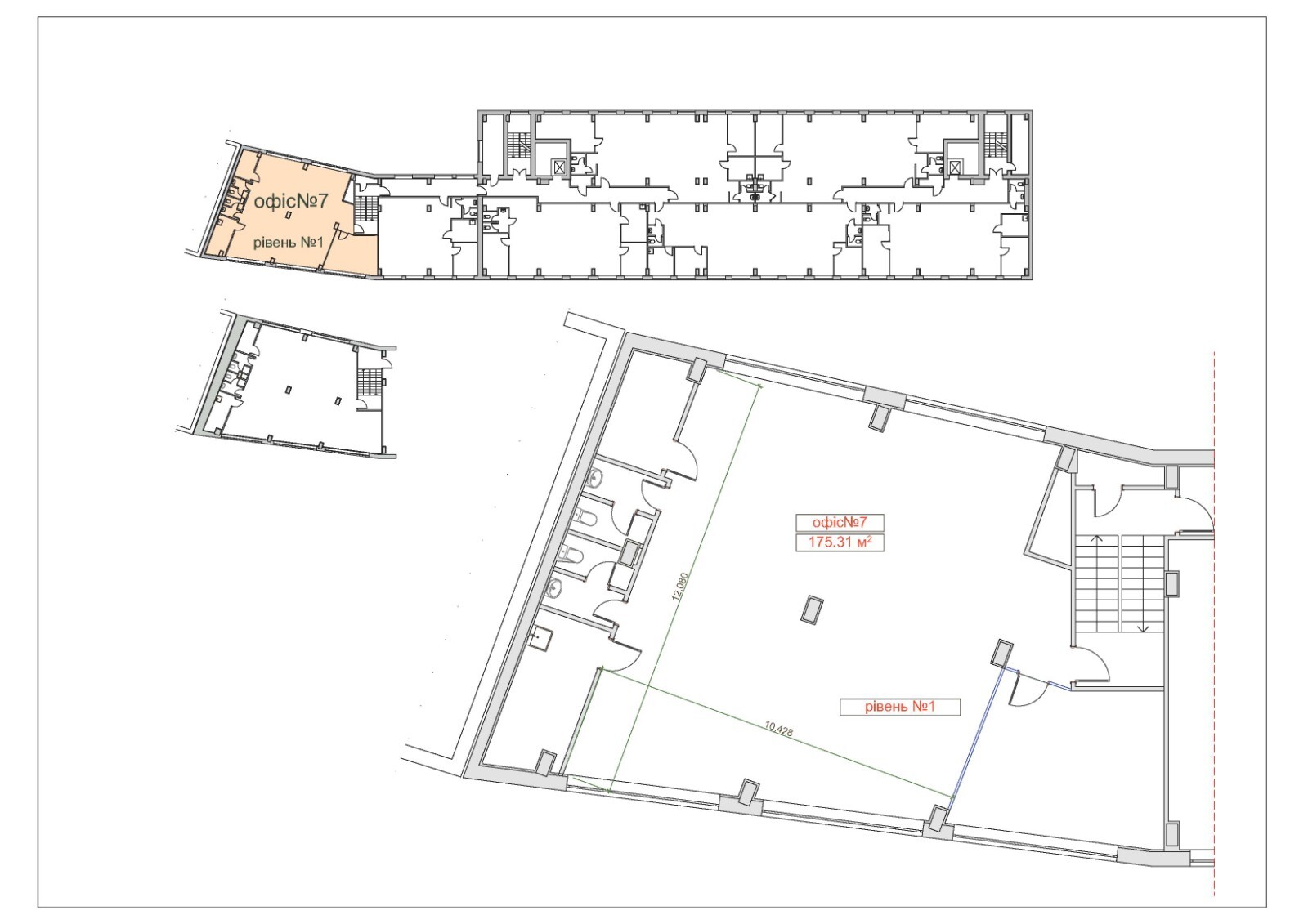
Оренда офісу 172 м², Глибочицька вул.
Створено 27 травня, оновлено сьогодні, 07:38
Код оголошення 22378106
- Чи варто зараз купувати нерухомість?30.094 706
- Чи варто купити будинок в спокійному регіоні, в Вінниці?17.092
- Завышеные тарифы на отопление. Как обжаловать и куда писать?19.082
- Іпотека від Банків із найкращими умовами | Обговорення кредитів під заставу нерухомості13.08192
- Краудфандинг - типы группового инвестирования01.083
Оренда офісу
Лінія будівель | Перша | |
Вхід | Загальний з двору | |
Поверх | 5 | |
Загальна площа | 172 м² | |
Оздоблення | Типовий ремонт | |
Наявність меблів | Без меблів | |
Інфраструктура | аптека, кафе, супермаркет, салон краси, фітнес-центр, відділення банку, медичний центр, мінімаркет | |
Парковка | Наземна | |
Поверхів в будинку | 7 | |
Висота стель | 3 м | |
Тип будівлі | Бізнес-центр | |
Клас будівлі | B | |
Термін оренди | Тривалий | |
Передоплата, міс. | 2 | |
Тип оренди | Пряма оренда |
Інформація
Без комиссии. Аренда офиса 172 кв.м., в БЦ, улица Глубочицкая 17, офис после ремонта, все коммуникации, 4-й этаж, лифт, круглосуточный доступ, кондиционеры, охрана, наземный паркинг. Под любой вид деятельности.Цена 300 гривен кв.м., плюс коммуналка. Возможна аренда 146 кв.м., 175 кв.м, или 370 кв.м.
Є інформація, яку ви хочете повідомити?
Розташування
АдресаКиїв, Глибочицька вул.
Найближчі станції метроЛук'янівська, Тараса Шевченка
Найближчі орієнтири:Сквер Гейдара Алієва, Сквер ім. Космодем'янської, Сквер ім. Чкалова, Сквер Гончара, Ботанічний сад ім. Фоміна
Loading map...
Написати власнику


Авторський канал ріелтора в Іспанії
Знайомтесь з Бенідормом, нерухомістю та стилем життя. Новобудови регіону, аналітика, інвестиції
Детальніше