Оренда офісу 327 м², Ігорівська вул., 12Б
Створено 22 жовтня 2018, оновлено 05 квітня
Код оголошення 10725135
Оренда офісу
| Лінія будівель | Друга | |
| Вхід | Загальний з вулиці | |
| Поверх | 2 | |
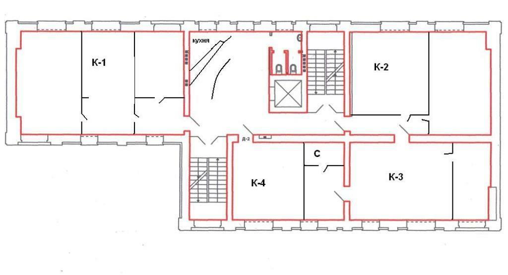
| Загальна площа | 327 м² | |
| Оздоблення | Типовий ремонт | |
| Наявність меблів | Без меблів | |
| Додатково | Наявність охорони, Паркінг, Кондиціонер(и), Сигналізація, Без комісійних | |
| Парковка | Наземна | |
| Матеріал стін | Керамічна цегла | |
| Поверхів в будинку | 7 | |
| Тип будівлі | Бізнес-центр | |
| Клас будівлі | B | |
| Термін оренди | Тривалий | |
| В ставку включені | ПДВ | |
| Тип оренди | Пряма оренда |
Інформація
Пропонуємо в оренду офіс на 2 поверсі БЦ на вул. Ігорівська, поряд із метро "Поштова площа". У БЦ система контролю доступу, своє подвір'я під охороною, паркування, є генератор. Оренда 300грн/ м+ ПДВ Експлуатаційні витрати 126грн /м + ПДВ Пропозиція без комісії.
Є інформація, яку ви хочете повідомити?
Розташування
АдресаКиїв, Ігорівська вул., 12Б
Найближчі станції метроПоштова площа, Майдан Незалежності, Контрактова площа, Хрещатик, Золоті ворота
Найближчі орієнтири:Парк Володимирська Гірка, Старокиївська гора, Хрещатий парк, Сквер Небесної Сотні, гора Уздихальниця
Loading map...
Київ, Ігорівська вул., 12Б
Народний рейтинг будинку
Поштова площа – 3 хв.
GPS-координати
50.460546489 30.524407958
Характеристики будинку
Матеріал стін
Керамічна цегла
Поверхів в будинку
7
Написати власнику

Авторський канал ріелтора в Іспанії
Знайомтесь з Бенідормом, нерухомістю та стилем життя. Новобудови регіону, аналітика, інвестиції
Детальніше