Продаж 1-кімнатної квартири 45 м², Академіка Вільямса вул.
Створено позавчора, 17:28, оновлено вчора, 13:54
Код оголошення 22410284
- Чи варто зараз купувати нерухомість?25.104 715
- Чи варто купити будинок в спокійному регіоні, в Вінниці?17.092
- Завышеные тарифы на отопление. Как обжаловать и куда писать?19.082
- Іпотека від Банків із найкращими умовами | Обговорення кредитів під заставу нерухомості13.08192
- Краудфандинг - типы группового инвестирования01.083
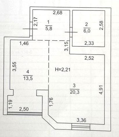
Продаж квартири
| Тип | 1-кімнатна | |
| Загальна площа | 45 м² | |
| Поверх | 11 | |
| Поверхів в будинку | 11 | |
| Оздоблення | Сучасний ремонт |
Інформація
Продам 1- ком. квартира - СТУДИЯ. Новострой. Вильямса / Королева. 622 за кв.м. Дом кирпичный . Общая площадь - 45 кв.м Квартира с ремонтом. Продается с МЕБЕЛЬЮ , и ТЕХНИКОЙ. 11 этаж ( тех. этаж ) , высота 2,25м. Лифт до 10 этажа. Электроотопление - теплые полы. Отличная цена - 28000 y.e Для быстрого ответа - Звоните , или пишите на Вайбер 0681967648.
Є інформація, яку ви хочете повідомити?
Розташування
АдресаОдеса, Академіка Вільямса вул.
Найближчі орієнтири:Меморіал 411-й батареї, Ринок Південний, Київський Ринок, Сквер ім. Академіка Глушка
Loading map...
Написати власнику

Продаж квартир поруч
Авторський канал ріелтора в Іспанії
Знайомтесь з Бенідормом, нерухомістю та стилем життя. Новобудови регіону, аналітика, інвестиції
Детальніше