Оренда приміщення вільного призначення 600 м², Южная дор.
Оренда приміщення вільного призначення
| Тип | Банк, Виставка, Готель, Дитячий садок, Магазин, Медичний центр, Офіс, Салон краси, Спортзал, Стоматологія, Фітнес, Школа, Шоурум | |
| Лінія будівель | Перша | |
| Вхід | Окремий з вулиці | |
| Поверх | 1 | |
| Загальна площа | 600 м² | |
| Оздоблення | Під чистове оздоблення | |
| Наявність меблів | Без меблів | |
| Інфраструктура | мінімаркет | |
| Парковка | Наземна | |
| Рік побудови будинку | 2015 | |
| Поверхів в будинку | 4 | |
| Висота стель | 3 м | |
| Назва комплексу | офис | |
| Тип будівлі | Бізнес-центр | |
| Клас будівлі | A | |
| Термін оренди | Тривалий | |
| Передоплата, міс. | 1 | |
| Тип оренди | Пряма оренда |
Інформація
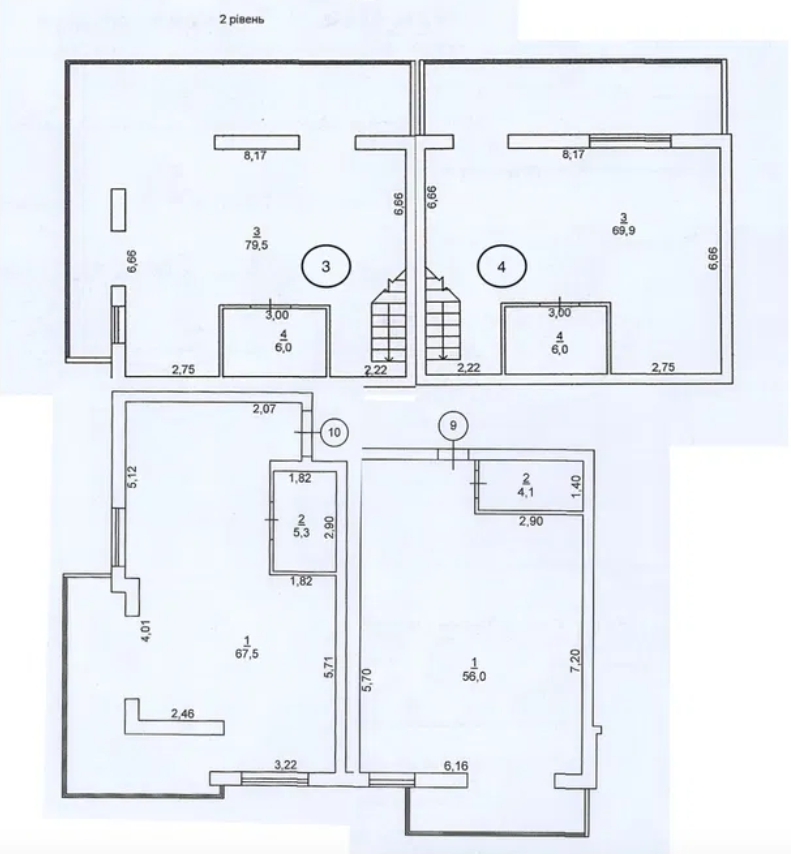
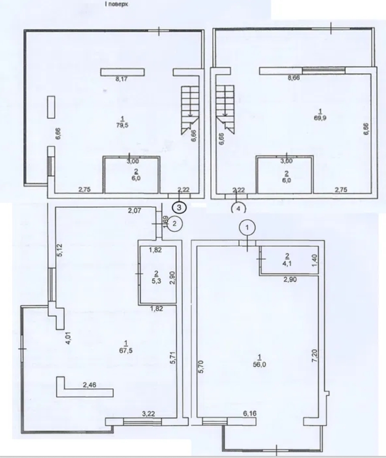
Сдам помещения 295 или 600м под любой вид детельности Южная дорога\ ул. Заболотного, 1-2\4, 295 или 600м, административное здание, новая постройка, собственная котельная, под ремонт. Загальна площа: 600 м² Рік побудови / здачі: Після 2015 Cанвузол: Так Опалення: Власна котельня Ремонт: Ні Комфорт: Ліфт, Гостьовий паркінг, Панорамні вікна, Паркувальне місце, Охорона території Опис Здається в оренду фасадне приміщення площею 600 м² (1-й та 2-й поверхи, окремий вхід) у новому бізнес-центрі Vermont, що розташований навпроти ТРЦ “Рів’єра”, на перехресті Південної дороги та вул. Ак. Заболотного. Переваги розташування: • Активний пішохідний і автомобільний трафік • Густонаселений район: Котовського, Сосновий берег, Ліски, Фонтанка, Рів’єра Сіті, Парк Фонтанів, Сади Рів’єри • Зручна транспортна розв’язка Про будівлю: • Сучасний новий офісний центр • Автономне опалення, вентиляція • Паркінг для співробітників і клієнтів • Цілодобова охорона • Доступ 24/7 Характеристики приміщення: • Власний фасадний вхід • Високі стелі • Панорамне скління з енергозберігаючими склопакетами • Вільне планування, декілька внутрішніх сходів • Можливість виділити окрему адміністративну зону • Нежитловий фонд Умови оренди: • Вартість — від 4$/м² у стані від будівельників та 6$ із ремонтом • Власник готовий зробити ремонт під орендаря • Довгострокові ремонтні канікули • Можливий безготівковий розрахунок • Гнучкі умови на період воєнного стану • Можна орендувати частину площі! Возможна аренда площадей 56, 67, 123м. на 1 этаже. цена аренды 600м без ремонта 2400 уе. в месяц. цена аренды 600м с ремонтом 3600 уе. в месяц. цена аренды 1 этажа 295м без ремонта 1200 уе. в месяц.
Розташування
Написати власнику
