Продаж будинку 150 м²
Продаж будинку
| Тип | Будинок | |
| Загальна площа | 150 м² | |
| Кількість спалень | 4 | |
| Кількість санвузлів | 3 | |
| Площа ділянки | 10 Соток | |
| Поверхів в будинку | 2 | |
| Матеріал стін | Газоблок | |
| Під'їзні шляхи | Ґрунт | |
| Каналізація | Септик | |
| Водопостачання | Скважина | |
| Оздоблення | Чорнове оздоблення | |
| Санвузол | В будинку | |
| Площа житлових кімнат | 30+12+15+20 м² | |
| Ділянка кутова | Ні | |
| Додатково | Тераса |
Інформація
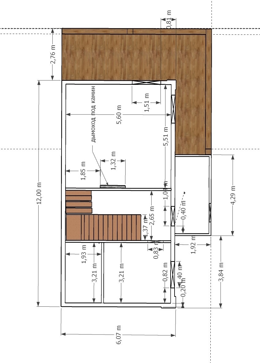
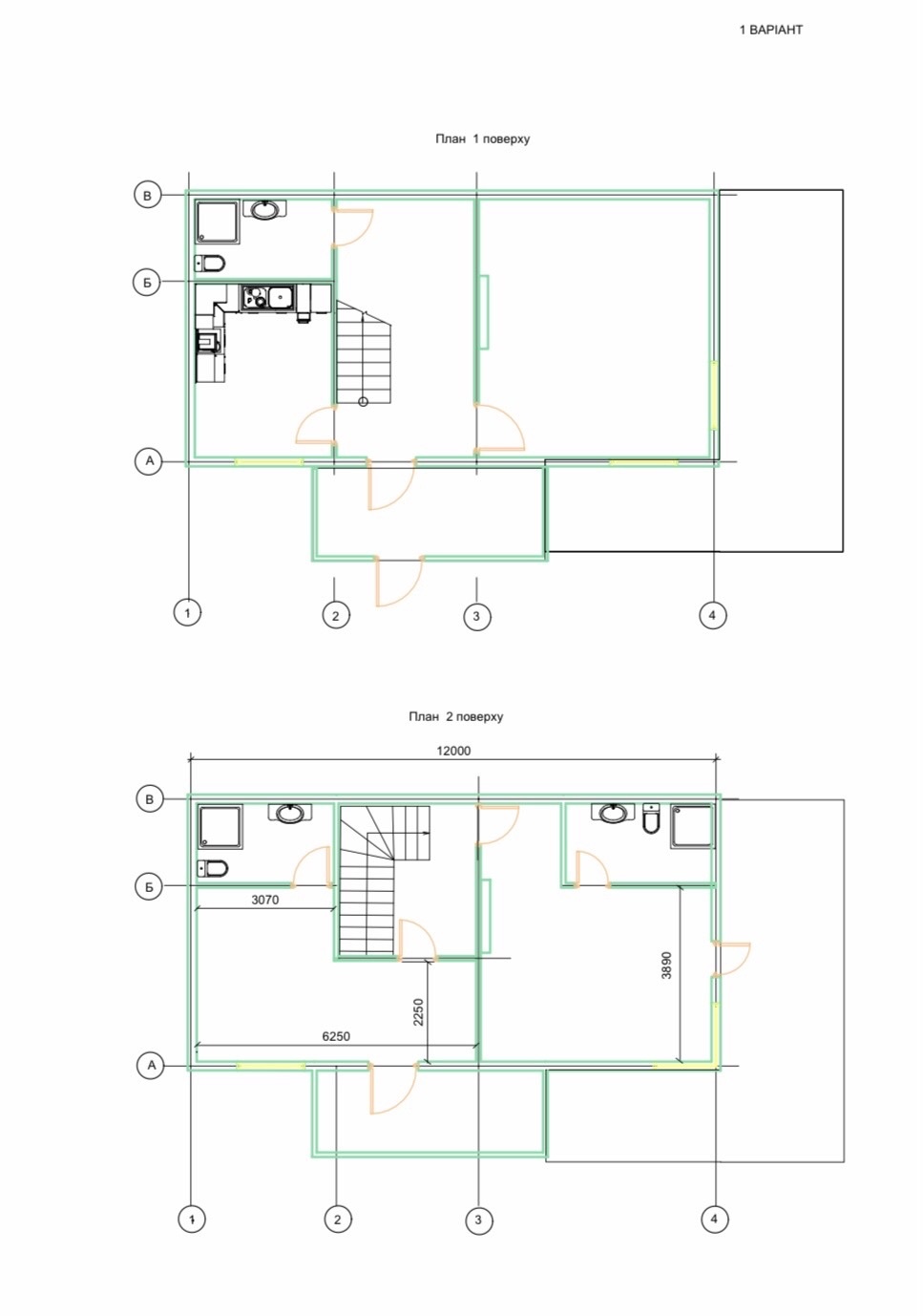
Пропонується чудовий двоповерховий будинок площею 150 м² із двома терасами та балконом, розташований серед високих сосен на доглянутій ділянці 10 соток. Територія майже повністю огороджена — затишок і приватність гарантовані. На ділянці росте 12 сосен, створюючи унікальну атмосферу спокою, чистого повітря та єднання з природою. Вранці вас зустрічатиме спів птахів і білочки на деревах 🐿️. ✨ Переваги будинку: • Будинок введений в експлуатацію, готовий до внутрішніх робіт. • Чорнова обробка всередині — ідеальна можливість створити дизайн своєї мрії. • Проєкт будинку продуманий до дрібниць — зручне планування, світлі просторі кімнати та виходи на тераси й балкон. 🏠 Планування: 1 поверх: • Простора кухня-студія — 30 м² із місцем під камін і виходом на терасу 17 м²; • Спальня — 12 м² з власною ванною кімнатою та санвузлом 6 м²; • Прихожа, коридор, сходи на другий поверх. 2 поверх: • Перша спальня — 20 м² з власною ванною кімнатою 6 м² та виходом на терасу 17 м²; • Друга спальня — 15 м² з власною ванною кімнатою та санвузлом 6 м² та виходом на балкон. 🔌 Комунікації: • Електрика — 50 кВт (по будинку не розведено); • Свердловина — 50 м; • Каналізація — септик; • Опалення — електричне. 🌿 Це ідеальне місце для тих, хто цінує гармонію, тишу та природу, але хоче залишатися недалеко від міста. Свіже повітря, простір і краса навколо створюють неповторну атмосферу дому, куди хочеться повертатися. 💰 Ціна: 140 000 $ 📞 Телефонуйте: 098-803-1775 — Валентин 🌟 Цей будинок — чудовий варіант для комфортного життя за містом і втілення своїх мрій про ідеальний дім серед природи.
Розташування
Написати власнику
