На жаль всі квартири з данним плануванням продані
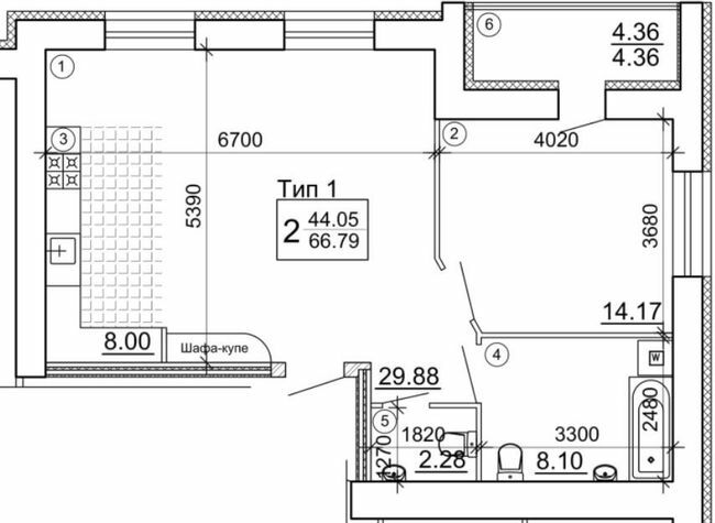
Двокімнатне планування квартири 66.79 м² в Мкрн Академічний, Вінниця
Загальна площа66.79 м²
Поверхи1-6 / 8
Житлова площа44.05 м²
Площа кухні8 м²
1.24 млн Грн
/ 18 500 грн/м²
Інші 2-кімнатні планування, Мкрн Академічний
Ціни на двокімнатні від забудовника актуальні на 27.01.2022
Помітили невідповідність? Повідомте нам
Розташування
Адресавул. Миколаївська (р-н вул. Пирогова)
Найближчі орієнтириБотанічний сад ВНАУ, Авторинок "Сатурн", Парк Дружби народів, пляж "Плити", Національний музей-садиба ім. Пирогова
Loading map...
Задайте питання забудовнику


Авторський канал ріелтора в Іспанії
Знайомтесь з Бенідормом, нерухомістю та стилем життя. Новобудови регіону, аналітика, інвестиції
Детальніше
- Новобудови в Україні
- Вінниця
- Ленінський район
- Академічний мкр-н
- Мкрн Академічний
- 2-кімнатне планування 66.79 м²