Подати оголошення
2-кімнатна 67.18 м² в ЖК Бережанський від 29 000 грн/м², Київ

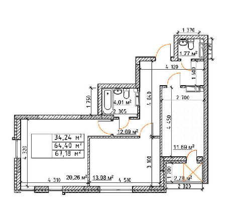
Двокімнатне планування квартири 67.18 м² в ЖК Бережанський, Київ

Загальна площа67.18 м²
Поверхи2-23 / 25
Житлова площа34.24 м²
Площа кухні11.69 м²
1.95 млн Грн
/ 29 000 грн/м²
+380 (97) 596 15 15Дзвонити

Інші 2-кімнатні планування, ЖК Бережанський

2-кімнатна 59.98 м² в ЖК Бережанський від 29 000 грн/м², Київ
Ціна:
III квартал 2021
продано59.98 м²
Поверх 8 / 9
2-кімнатна 68.11 м² в ЖК Бережанський від 31 000 грн/м², Київ
Ціна:
III квартал 2021
продано68.11 м²
Поверх 2-23 / 25
2-кімнатна 69.2 м² в ЖК Бережанський від забудовника, Київ
Ціна:
III квартал 2021
продано69.2 м²
Поверх 2-23 / 25
2-кімнатна 128.64 м² в ЖК Бережанський від 22 000 грн/м², Київ
Ціна:
III квартал 2021
продано128.64 м²
Поверх 25 / 25
Ціни на двокімнатні від забудовника актуальні на 23.02.2022
Помітили невідповідність? Повідомте нам
ГалжитлобудГалжитлобуд
Забудовник
Галжитлобуд
+380 (97) 596 15 15Дзвонити

Розташування

Адресавул. Бережанська, 15
Найближчі орієнтириПарк "Гірка Крістера", Парк "Кинь-Грусть", озеро Опечень, Березовий гай
Loading map...
Купуй квартиру на Domik.ua
Широкий вибір квартир від власників, забудовників та ріелторів
Детальніше
РІЕЛ

РІЕЛ

93 будинки будують в 14 ЖК
46 готових будинків в 25 ЖК з 2013 року
Київміськбуд

Київміськбуд

61 будинок будують в 21 ЖК
167 готових будинків в 76 ЖК з 2010 року
Blago

Blago

60 будинків будують в 15 ЖК
24 готових будинки в 5 ЖК з 2013 року
Трест Жилбуд-1

Трест Жилбуд-1

59 будинків будують в 11 ЖК
181 готовий будинок в 36 ЖК з 2012 року
Comfort Life

Comfort Life

54 будинки будують в 9 ЖК
50 готових будинків в 10 ЖК з 2012 року