Подати оголошення
На жаль всі квартири з данним плануванням продані
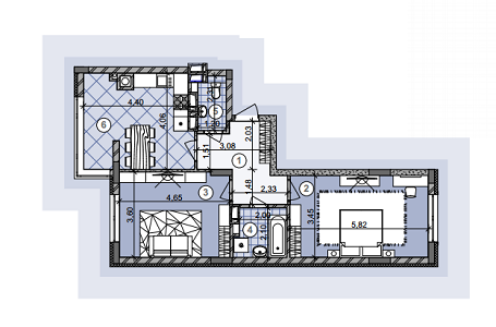
2-кімнатна 68.62 м² в ЖК Deluxe від забудовника, Львів

Двокімнатне планування квартири 68.62 м² в ЖК Deluxe, Львів

Загальна площа68.62 м²
Поверхи5 / 10
Житлова площа36.44 м²
Площа кухні17.04 м²
від забудовника
+380 (96) 231 00 11Дзвонити

Інші 2-кімнатні планування, ЖК Deluxe

2-кімнатна 58.77 м² в ЖК Deluxe від забудовника, Львів
Ціна:
I квартал 2018
продано58.77 м²
Поверх 4 / 10
2-кімнатна 72.81 м² в ЖК Deluxe від забудовника, Львів
Ціна:
I квартал 2018
продано72.81 м²
Поверх 8 / 10
Помітили невідповідність? Повідомте нам
MSMS
Забудовник
MS
+380 (96) 231 00 11Дзвонити

Розташування

Адресавул. Малоголосківська, 12А
Найближчі орієнтириБрюховицький ліс, Кортумова Гора, Парк ім. 700-річчя Львова, Стадіон "Торпедо", Замарстинівський лісопарк
Loading map...
Купуй квартиру на Domik.ua
Широкий вибір квартир від власників, забудовників та ріелторів
Детальніше
РІЕЛ

РІЕЛ

93 будинки будують в 14 ЖК
46 готових будинків в 25 ЖК з 2013 року
Київміськбуд

Київміськбуд

61 будинок будують в 21 ЖК
167 готових будинків в 76 ЖК з 2010 року
Blago

Blago

60 будинків будують в 15 ЖК
24 готових будинки в 5 ЖК з 2013 року
Трест Жилбуд-1

Трест Жилбуд-1

59 будинків будують в 11 ЖК
181 готовий будинок в 36 ЖК з 2012 року
Comfort Life

Comfort Life

54 будинки будують в 9 ЖК
50 готових будинків в 10 ЖК з 2012 року